富台國小、龍岡國中、
中壢買屋 /
中壢買房
-
青埔過嶺買房 桃園中壢|健保局華勛全新毛胚電梯透天別墅
預約看屋
更多優質好屋: 123
※ 房屋照片僅反應使用現況,用途以實際合法文件為準。若法定用途與現況不同,可能違法並有相關風險,請購屋或承租前詳加確認,以保障權益。
- 總價:2500 萬
- 參考單價:32.13 萬/坪
- 地址:
桃園市
中壢區
榮民南路
地圖
🏷️ 查看區域實價登錄
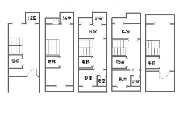
- 格局: 4房(室) 3廳 5衛
- 總坪數:77.803 坪 (不含車位面積)
- 主建物面積:70.083 坪
- 附屬建物面積:7.72 坪
- 樓別/樓高: 整棟 / 4樓
- 屋齡:3 個月
- 法定用途:住家用
- 形式/類型:住宅/ 透天厝
- 電梯:有
詳細資訊
特色說明
圖片介紹
















地圖 (點擊顯示地圖)
問與答
青埔過嶺買房
青埔過嶺買房
過嶺店(仲介,收取服務費)
暱稱:過嶺店
專業品質:
服務態度:
房仲電話:0935-239901
訂閱:0 (加入)過嶺 加盟店
經紀業名稱: 鴻耀不動產有限公司
證號: (102)登字第254902號
?家是什麼?家是一份重擔,家是一份責任;
?家是彼此的真誠相待,家更是能夠白頭偕老的慢慢旅程。
?家是我們人生的驛站,是我們生活的樂園,也是我們避風的港灣。
?幸福成家~家入青埔一個「靜 善 境 美 」的居住環境
讓家入青埔領航團隊 為您幸福圓夢、幸福成家?
青埔過嶺買房 請指名社區小巢03-4903391
室內電話:034903391
青埔過嶺買房 草漯重劃區-黃金地段昕幸福大坪數3房
桃園市 觀音區
青埔過嶺買房 逸偉王樣-中壢過嶺好市多景觀裝潢3房車
桃園市 中壢區
青埔過嶺買房 桃園大園市區交流道超近千萬內透天
桃園市 大園區
青埔過嶺買房 宜誠樂聚過嶺好市多商圈全新落成大三房+B1平面車 物件地
桃園市 新屋區
青埔過嶺買房 近中壢好市多前陽台進出東大路兩房美寓
桃園市 觀音區
青埔過嶺買房 青景喆露臺戶|全新完工|股東保留戶|中壢好市多
桃園市 觀音區
青埔過嶺買房 中壢好市多商圈|宜雄瓏耀精緻裝潢2+1房+平車
桃園市 中壢區
青埔過嶺買房 巴頓工業區稀有廠辦稀有釋出大車進出方便3
桃園市 龜山區
青埔過嶺買房 近青埔太睿A19低總價四房車田園景觀宅
桃園市 中壢區
青埔過嶺買房 桃園藝文特區|捷運G10.G11|同德國小|阿曼
桃園市 桃園區
預約看屋
發問
收藏房屋土地
分享
















我家粉絲團