詳細資訊
朝向方位:坐北朝南
鄰近學校:復興國小/復興國中
鄰近公園:文化中心 巴克禮公園
生活機能:崇德市場
附近交通:仁德交流道
面臨路寬:6米
物件資訊內容以登記簿謄本或預售屋買賣契約為準,若有疑問請洽承辦人員。
特色說明
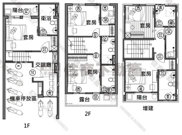
圖片介紹
















地圖 (點擊顯示地圖)
問與答
賣家資訊
仁德歸仁土地
李喬芸(蕎芸)(仲介,收取服務費)
暱稱:李喬芸(蕎芸)
專業品質:
服務態度:
房仲電話:0906-704705
讚:2 (加入)住商不動産 仁德中正 加盟店
經紀業名稱: 德高不動產有限公司
證號: (108)登字第342698號
仁德歸仁土地 李喬芸(蕎芸) 0906704705
史博館方正約10米路都內農地 (安南區) 仁德歸仁土地
台南市 安南區
將軍苓和國小12米路30地坪整新店面透天 仁德歸仁土地
台南市 將軍區
仁德二空免整理裝潢透天#屋況佳 #可立即入住 仁德歸仁土地
台南市 仁德區
歸仁高鐵特區旁方正農地 ❣️獨家
台南市 歸仁區
屋況佳✍️德崙路15米路RC透天店住
台南市 仁德區
安南區本原街10米路都內農地B 仁德歸仁土地
台南市 安南區
北區大道新城三房平車 仁德歸仁土地
台南市 北 區
仁德中洲大面寬一般農地 仁德歸仁土地
台南市 仁德區
關廟15米路旁大面寬角窗店住 仁德歸仁農地
台南市 關廟區
仁德德糖都內農地#近十鼓園區 仁德歸仁土地
台南市 仁德區

預約看屋
發問
收藏房屋土地
分享
















預約看屋

我家粉絲團