大里工業區軟體園區仁
大里買屋 /
大里買房
-
高投報 工業區 軟體園區 預售大里電梯透天11間套房北屯大樓
詳細資訊
朝向方位:坐西北朝東南
鄰近學校:市立塗城國小 市立成功國中
鄰近公園: 仁美社區公園
生活機能:仁化黃昏市場
面臨路寬:4米
物件資訊內容以登記簿謄本或預售屋買賣契約為準,若有疑問請洽承辦人員。
特色說明
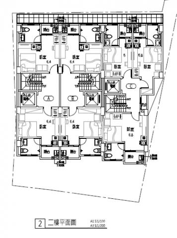
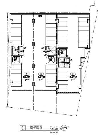
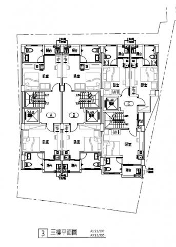
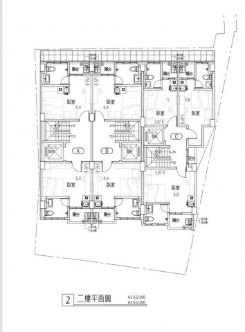
圖片介紹








地圖 (點擊顯示地圖)
問與答
賣家資訊
北屯大樓建案
邱晨恩(仲介,收取服務費)
暱稱:邱晨恩
專業品質:
服務態度:
房仲電話:0955-962310
讚:11 (加入)永慶不動產-漢口山西 加盟店
經紀業名稱: 嘉星不動產經紀有限公司
證號: (108)登字第342572號
大家好!我是您在大台中的房仲夥伴,專注於台中北屯、西區、南區、東區、中區、大里、西屯、南屯、潭子、北區、梧棲、沙鹿和太平等地區的房屋買賣與租賃。我深耕在地多年,堅持用心感受每一位客戶的需求,誠實和負責是我對待工作的基本態度。
我相信專業是服務的基石,因此我始終以細心和謹慎的態度,為您提供最具價值的房產諮詢。而我熱情的性格和幽默的風格,讓每次的互動都充滿歡樂與輕鬆,讓您在尋找家園的過程中,感受到溫暖與安心。
作為獲得百萬經紀人員的我,從買賣房屋,租屋到包租代管,無論是收租套房或透套產品,公寓 華廈 大樓 商辦 店面 透天 別墅 土地 建地 農地 您都能在這裡找到合適的選擇。若您對房地產有任何疑問,或是想了解更多資訊,隨時歡迎與我聯繫!讓我們一起實現您的夢想家園吧!期待您的來訊!
專任 單元二美裝潢三房平車 找我一次看多戶 北屯大樓建案
台中市 南屯區
獨家專任正五期精裝大兩房市政府捷運站 精誠商圈 北屯大樓建案
台中市 西屯區
專任 單元12泰鉅捷世代視野戶三年屋B1平車 北屯大樓建案
台中市 北屯區
曉明儷晶精美電梯大套房北平天津商圈文心中清捷運 北屯大樓建案
台中市 北 區
正太原路低總價兩房 可收租22000 收租自住 北屯大樓建案
台中市 北 區
美術館旁 低總價 精品透天 全棟部分鋼構補強 北屯大樓建案
台中市 西 區
走路頭家國小 無限視野高級採光 次頂樓三房平車 北屯大樓建案
台中市 潭子區
惠宇大容 次頂樓三房平車質感裝潢戶 雙衛浴開窗 北屯大樓建案
台中市 北屯區
田尾園藝區稀有釋出 臨路 可農保地 投資自用 北屯大樓建案
彰化縣 田尾鄉
逢甲商圈水湳旁福星名邸三房雙車位 北屯大樓建案
台中市 西屯區
預約看屋
發問
收藏房屋土地
分享








預約看屋


我家粉絲團