室內車庫 電梯 美別
竹北買屋 /
竹北買房
-
永慶同星|歐悅NO6社區型大地坪室內車庫電梯美別墅B1
預約看屋
更多優質好屋: 164
※ 房屋照片僅反應使用現況,用途以實際合法文件為準。若法定用途與現況不同,可能違法並有相關風險,請購屋或承租前詳加確認,以保障權益。
- 總價:5680 萬
- 參考單價:56.22 萬/坪
- 地址:
新竹縣
竹北市
中山三街
地圖
🏷️ 查看區域實價登錄
- 社區:歐悅NO6
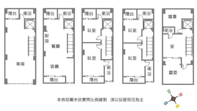
- 格局: 5房(室) 2廳 7衛
- 總坪數:101.029 坪 (不含車位面積)
- 主建物面積:92.846 坪
- 附屬建物面積:8.183 坪
- 土地面積:34.816 坪
- 樓別/樓高: 1~5樓 / 5樓
- 屋齡:1 年
- 法定用途:住家用
- 形式/類型:住宅/ 別墅
- 電梯:有
詳細資訊
特色說明
圖片介紹
























地圖 (點擊顯示地圖)
我家AI分析|物件診斷一次看
本內容由AI輔助分析整理,僅供參考,實際情況仍建議依此房仲說明與個人需求判斷。
SWOT 分析
| 面向 | 內容 |
|---|---|
| 優勢 | 屋齡僅 1 年新成屋,採光通風佳且無需大修;101 坪大空間配置 5 房 7 衛,適合三代同堂;社區內附設電梯及室內車庫,動線便利;鄰近台元科園與竹北大遠百,生活機能完整。 |
| 劣勢 | 總價近 5680 萬,門檻較高;位於 1 至 5 樓的 5 樓頂層,雖有電梯但需注意頂樓隔熱與防水風險;單價約 56 萬,在當前市場下預算壓力較大。 |
| 機會 | 竹北精華區豪宅資產具保值潛力;學區為中正國小與勝利國中,長期居住價值高;小社區住戶單純,居住隱私與安靜度高。 |
| 威脅 | 高總價物件在房市波動期流動性較差,未來轉手可能需要較長時間;高利貸或房貸利率上升可能增加財務負擔;頂樓單位若有漏水問題,維修成本與困擾較大。 |
物件評論
這棟物件屬於竹北市區少見的電梯別墅產品,空間規劃寬敞且學區機能完善,非常適合預算充足且對隱私與空間有高度需求的家族型購屋者。然而,由於單價與總價皆屬高標,且位於頂樓,建議買家除確認建築防水隔熱狀況外,也需評估自身財務調配能力。綜合考量,若您追求新穎建築、大空間與便利生活圈,此物件具備極高價值;但若預算緊湊或介意頂樓潛在風險,則需謹慎評估後再作決定。
問與答
竹北買屋賣屋
竹北買屋賣屋
同星開發有限公司(仲介,收取服務費)
暱稱:永慶竹北科大同星團隊
專業品質:
服務態度:
房仲電話:03-6-570707
訂閱:1 (加入)竹北科大同星 加盟店
經紀業名稱: 同星開發有限公司
證號: (106)中市經紀字第01789號
永慶竹北科大同星團隊 - 竹北在地專家,成就您的理想家園 位於竹北科大區,鄰近中國醫藥大學新竹附設醫院及快速道路,交通便利。我們的店面擁有9米大面寬,設計風格時尚簡約,營造出舒適的網美氛圍,讓您在洽談房產事務時也能感到輕鬆愉悅。 在地深耕,專業服務 我們的團隊成員大多為7、8年級生,深耕大新竹地區房市多年,對在地環境、學區、生活機能等了如指掌。由千萬業績主管親自帶領,透過一對一的實戰教學,培育出專業、熱情的房產顧問。我們秉持著永慶不動產「專業+用心」的核心價值,提供客戶最專業、最客觀的房產諮詢服務,協助您找到理想的家。 我們的服務 免費房屋行情查詢: 準確評估您的房產價值 貸款諮詢: 協助您選擇最適合的貸款方案 客製化服務: 滿足您所有關於房產的需求 為什麼選擇我們? 在地深耕: 深入了解竹北在地房市,為您精選優質房源 專業團隊: 千萬業績主管帶領,提供最專業的服務 客製化服務: 根據您的需求,量身打造最適合的方案 透明交易: 秉持誠信原則,保障您的權益 立即聯絡我們 洽詢專線:03-6570707 地址:新竹縣竹北市福興一路88號1樓 FB:永慶不動產-竹北科大同星團隊 歡迎您來店參觀,我們將竭誠為您服務!
室內電話:036570707
永慶同星|近68社區最便宜|台泥重劃富廣美美質感兩房
新竹縣 竹東鎮
永慶同星|歐悅NO6重劃區正臨路優質電梯美別墅B6
新竹縣 竹北市
永慶同星|新埔監理站稀有出售大面寬乙種工業地
新竹縣 新埔鎮
永慶同星|竹北華盛頓|靚投套|全室更新狀態極佳+車位
新竹縣 竹北市
永慶同星|低總價大魯閣湳雅商圈精緻三房
新竹市 北 區
永慶同星|成家首選|湖口工業區全新整理大三房
新竹縣 湖口鄉
永慶同星|後站三民商圈前後臨路稀有住店
新竹縣 竹北市
永慶同星|新豐台61雙面臨路農地
新竹縣 新埔鎮
永慶同星|高鐵特區明日軸四房雙車
新竹縣 竹北市
永慶同星|惠宇上澄 朝南視野大四房雙平車
新竹縣 竹北市
預約看屋
發問
收藏房屋土地
分享
























我家粉絲團