大台北華城 青山鎮
新店買屋 /
新店買房
-
松山買房推薦 華城雲海美景大戶 新店華城 泳池別墅 康橋學校
預約看屋
更多優質好屋: 39
※ 房屋照片僅反應使用現況,用途以實際合法文件為準。若法定用途與現況不同,可能違法並有相關風險,請購屋或承租前詳加確認,以保障權益。
- 總價:28800 萬 (含車位價)
- 參考單價:133.61 萬/坪
- 地址:
新北市
新店區
華城三路
地圖
🏷️ 查看區域實價登錄
- 社區:大台北華城
- 格局: 7+5房(室) 2廳 9衛
- 總坪數:215.56 坪 (不含車位面積)
- 主建物面積:192.21 坪
- 附屬建物面積:23.35 坪
- 土地面積:310.53 坪
- 樓別/樓高: B2~3樓 / 3樓
- 屋齡:16 年
- 法定用途:住家用
- 形式/類型:住宅/ 別墅
- 車位:平面式車位
- 車位描述:庭院車位
房市行情分析
本圖表依實價登錄資料整理,提供市場行情參考;實際價格仍會因屋況、條件不同而有所差異,建議洽詢承辦營業員進一步了解。
詳細資訊
特色說明
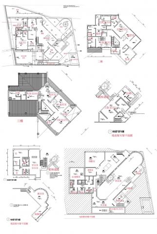
圖片介紹












地圖 (點擊顯示地圖)
專家亮點
本內容由 AI 輔助分析整理,僅供參考,實際情況仍建議依此房仲說明與個人需求判斷。
總結:適合特定高端族群,非普遍性投資标的
此物件屬於頂級豪宅規格,總價近 3 億元,建議僅推薦給預算充足、且極度重視居住環境與私密性的高端客戶。其最大賣點在於「山城景觀」與「康橋學區」的完美結合,非常適合追求生活品質或有子女教育需求的家庭。
然而,購屋者必須權衡「高持有成本」與「通勤距離」這兩個現實問題。由於單價高昂且社區偏遠,若以投資獲利為主要目的,流動性風險較高;但若作為自用型度假宅或家族傳承資產,其稀缺的景觀與空間價值值得肯定。在決策前,強烈建議親臨現場確認房屋維護現況,並詳細評估後續的維管與裝修預算。
問與答
松山買房推薦
松山買房推薦
賴奇勇(仲介,收取服務費)
暱稱:賴奇勇
專業品質:
服務態度:
房仲電話:0920-870278
訂閱:1 (加入)敦北民生加盟營業處 加盟店
經紀業名稱: 富麗欣房屋仲介有限公司
證號: (100)登字第170931號
松山買房推薦 賴奇勇 0920870278
我是賴奇勇,目前擔任大師房屋敦北民生加盟營業處副店長。
自民國96年起投入房仲業,至今已有18年經驗。過去我曾在嘉義木工模具廠工作十年,
也接受過憲兵士官訓練,培養出紀律、工匠精神與堅持到底的態度,這些特質讓我在房地產領域能始終保持專業與耐心。
這些年來,我服務過上百位客戶,從首購家庭到高資產董事長,
每一次成交都用心把關。我的理念很簡單:保持初心、努力、用心,堅持完成客戶所托。
房地產交易金額龐大,關係著一家人的人生規劃,我不只是一位仲介,更是客戶的顧問與守護者。
我的服務範圍涵蓋:不動產買賣與租賃、防詐與契約審閱、房地合一稅與贈與繼承規劃,
以及高資產客戶的資產配置建議。多年來我多次獲得單月百萬、二百萬甚至三百萬元業績獎,
但真正讓我最有成就感的,是客戶多年後依然把朋友與家人介紹給我,因為信任才是最大的肯定。
未來我會繼續深耕松山、民生社區市場,將誠信與專業帶給更多人。
我是賴奇勇,期待成為您最值得信賴的房仲夥伴。
松山買房推薦 雙敦高樓電梯三房 台安醫院電梯 敦化國中電梯
台北市 松山區
松山買房推薦 富錦街庭院一樓 聯合二村 民生社區一樓
台北市 松山區
松山買房推薦 民生社區透天 獨棟別墅 民生國小四房 介壽國中
台北市 松山區
松山買房推薦 力璞之星 高樓1+1房
新北市 林口區
松山買房推薦 雙敦庭院車庫一樓 音樂錄音室
台北市 松山區
松山買房推薦 三民美妝三樓 民生社區三房 三民國小公寓三房
台北市 松山區
松山買房推薦 民生國小三房 國泰公寓三房 民生公園住家三房
台北市 松山區
松山買房推薦 圓環二樓店辦 民生社區店面 新光大樓|店面辦公
台北市 松山區
松山買房推薦 新湖公寓鼎佳三房 內湖公寓三房
台北市 內湖區
松山買房推薦 長安東路辦公室 松江路辦公 南京復興捷運辦公
台北市 中山區
預約看屋
發問
收藏房屋土地
分享












我家粉絲團