嘉義三界埔買房
水上買屋 /
水上買房
-
電梯庭園農舍(預售) 太保朴子房地
預約看屋
更多優質好屋: 140
※ 房屋照片僅反應使用現況,用途以實際合法文件為準。若法定用途與現況不同,可能違法並有相關風險,請購屋或承租前詳加確認,以保障權益。
- 總價:4360 萬
- 參考單價:30.48 萬/坪
- 地址:
嘉義縣
水上鄉
國姓村三界埔
地圖
🏷️ 查看區域實價登錄
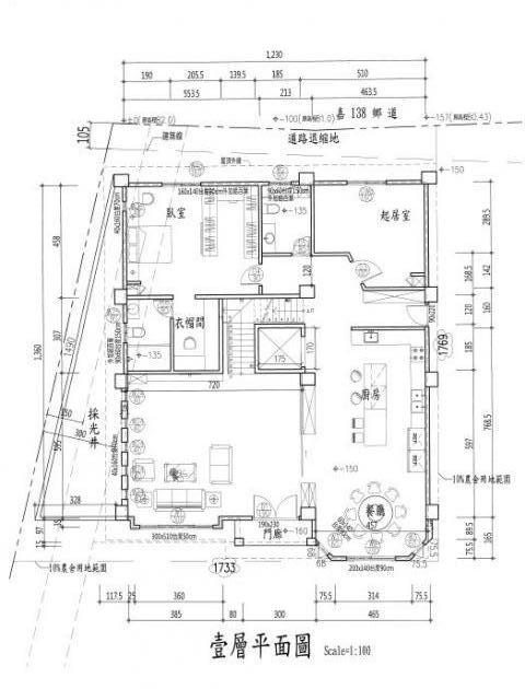
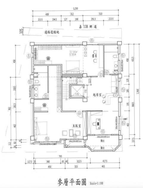
- 格局: 6房(室) 4廳 7衛
- 總坪數:143.06 坪 (不含車位面積)
- 主建物面積:143.06 坪
- 土地面積:816.15 坪
- 樓別/樓高: 整棟 / 3樓
- 屋齡:0 年
- 法定用途:住家用
- 形式/類型:住宅/ 農舍
- 車位:獨立車庫
詳細資訊
特色說明
圖片介紹








地圖 (點擊顯示地圖)
問與答
太保朴子房地
太保朴子房地
郭文雄(仲介,收取服務費)
暱稱:郭文雄
專業品質:
服務態度:
房仲電話:0908-620557
訂閱:0 (加入)台灣房屋 嘉義縣府高鐵特許 加盟店
經紀業名稱: 家仁不動產企業社
證號: (110)登字第405834號
您好! 我叫郭文雄,擁有多年的房地產行業經驗。
2024年,我在雲林、彰化、投縣、嘉義四個地區的季度排名中獲得第三名,顯示了我在這些市場的卓越表現和廣泛的業務拓展能力 縣府高鐵加盟店中榮獲了TOP1的業績,這不僅是對我業績的肯定,也體現了我在高鐵週邊房地產市場的關注專業知識
在過去的工作經驗中,我曾於2015年汲取中信房屋的業績王重點,這凸顯了我在推動業務成長和客戶滿意度方面的突出表現。被評為TOP能力,這不僅是對我業務的肯定,也反映了我在客戶服務和市場分析方面的專業素養
我一直致力於透過專業知識和豐富的市場經驗,幫助客戶實現他們的房地產目標。
感謝您的關注,我期待有機會接受您的委賣,委買,感激萬份謝謝!
室內電話:05-3620088
預約看屋
發問
收藏房屋土地
分享








我家粉絲團