專營高雄店面土地工業
鳳山買屋 /
鳳山買房
-
O14鳳山國中站/鳳陽花都金賺優質樓店
詳細資訊
管理費:1020 元/月
鄰近學校:誠正國小 鳳山國中
鄰近公園:大東公園
生活機能:傳統市場
附近交通:O14鳳山國中站
物件資訊內容以登記簿謄本或預售屋買賣契約為準,若有疑問請洽承辦人員。
特色說明
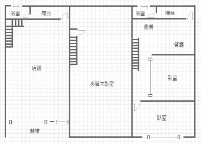
圖片介紹
















地圖 (點擊顯示地圖)
問與答
賣家資訊
新興買房尚坤
蔡 尚 坤(仲介,收取服務費)
暱稱:尚坤
專業品質:
服務態度:
房仲電話:0986-967913
讚:9 (加入)中山六合加盟店 加盟店
經紀業名稱: 凱璿不動產
證號: (99)年高市字00561號
經營畫廊20餘年,並於民國97年12月參加
不動產經紀人普考後,正式進入房地產領域
一本:
助人為樂。與人為善
諸事歡喜。莫忘初衷
誠心為您服務 歡迎您
R8三多商圈站/近三多百貨商圈大面寬電梯大住辦
高雄市 苓雅區
台鐵民族站/近高醫高投報率收租四套房
高雄市 三民區
R8三多商圈站/旅運中心旁透天五樓金鑽店面
高雄市 苓雅區
R8三多商圈站/圖書總館/軟體園區精美2+1房
高雄市 苓雅區
R11高雄車站三角窗金鑽電梯透天大店面
高雄市 新興區
R9中央公園站/新崛江商場金賺5米面寬邊間大店面
高雄市 新興區
R8三多商圈站/圖書總館/軟體園區精美2+1房
高雄市 苓雅區
大樹區小西臘莊園臨路超便宜優質農地
高雄市 大樹區
R9中央公園站/新崛江商場金賺5米面寬邊間大店面
高雄市 新興區
R11高雄車站三角窗金鑽電梯透天大店面
高雄市 新興區
預約看屋
發問
收藏房屋土地
分享
















預約看屋

我家粉絲團