臨路透天全聯快速高路
清水買屋 /
清水買房
-
台中海線房屋買賣 信富-輕屋齡臨路透天雙車|質感裝潢近全聯
預約看屋
更多優質好屋: 18
※ 房屋照片僅反應使用現況,用途以實際合法文件為準。若法定用途與現況不同,可能違法並有相關風險,請購屋或承租前詳加確認,以保障權益。
- 總價:1780 萬 (含車位價)
- 參考單價:33.8 萬/坪
- 地址:
台中市
清水區
忠孝路
地圖
🏷️ 查看區域實價登錄
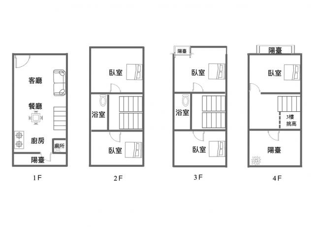
- 格局: 3房(室) 2廳 3衛 1廚房
- 總坪數:52.67 坪 (不含車位面積)
- 主建物面積:48.12 坪
- 附屬建物面積:4.55 坪
- 土地面積:22.98 坪
- 樓別/樓高: 1~3樓 / 3樓
- 屋齡:6 年
- 法定用途:住家用
- 形式/類型:住宅/ 透天厝
- 車位:平面式車位
- 車位描述:庭院可停
房市行情分析
本圖表依實價登錄資料整理,提供市場行情參考;實際價格仍會因屋況、條件不同而有所差異,建議洽詢承辦營業員進一步了解。
詳細資訊
特色說明
圖片介紹

















地圖 (點擊顯示地圖)
問與答
台中海線房屋買賣
台中海線房屋買賣
蔡芸菲(仲介,收取服務費)
暱稱:菲菲
專業品質:
服務態度:
房仲電話:0920-222503
訂閱:0 (加入)群義房屋 中港市鎮 加盟店
經紀業名稱: 信富地產有限公司
證號: (114)登字第491954號
台中海線房屋買賣|紮根海線,讓家實現,海線好房『菲』你莫屬
從沙鹿、梧棲到清水,這片土地吹著熟悉的風,也見證了無數成家的夢想。
對我來說,房仲不只是媒合一間屋子,而是幫每一顆想「定下來」的心,找到最穩固的支撐。海線的發展正在起飛,但我的服務始終腳踏實地。
「紮根海線,讓家實現。」
這不只是一句口號,更是我對每一位客戶的承諾。不論您是追求成家的首購族,還是深謀遠慮的置產家,芸菲都會用最專業的數據、最在地的情感,陪您在這片
土地上,紮下最深、最幸福的根。
台中海線房屋買賣 信富-櫻花市鎮低總價朝東三房車|學區機能房
台中市 清水區
台中海線房屋買賣 信富-幸福成|小資首選|超低總價唯一釋出
台中市 梧棲區
台中海線房屋買賣 信富-幸福成|帝王朝向視野絕佳|有前後陽台
台中市 梧棲區
台中海線房屋買賣 信富-聯悦馨|帝王坐向兩房車|蔦屋書店在這
台中市 梧棲區
台中海線房屋買賣 信富-有樂仕|輕奢美宅三房車|裝潢極度美
台中市 梧棲區
台中海線房屋買賣 信富-遠雄之星8|強推兩房超低價|送傢俱電
台中市 清水區
台中海線房屋買賣 信富-勝美新橫濱|三房社區最低價|稀有釋出
台中市 清水區
台中海線房屋買賣 信富-柏斯市|正三房視野絕佳|機能好高採光
台中市 梧棲區
台中海線房屋買賣 信富-勝美新橫濱|時尚裝潢三房車|景觀超美
台中市 清水區
台中海線房屋買賣 信富-欣世代|挑戰2房最低價休旅車位送家電
台中市 梧棲區
預約看屋
發問
收藏房屋土地
分享

















我家粉絲團