竹北買屋 /
竹北買房
-
竹北喜來登商圈|豐采520|頂樓商辦+平車 聽鈞一席話 房地
預約看屋
更多優質好屋: 159
※ 房屋照片僅反應使用現況,用途以實際合法文件為準。若法定用途與現況不同,可能違法並有相關風險,請購屋或承租前詳加確認,以保障權益。
- 總價:3989 萬 (含車位價)
- 參考單價:61.28 萬/坪
- 地址:
新竹縣
竹北市
勝利一路
地圖
🏷️ 查看區域實價登錄
- 社區:豐采520
- 總坪數:65.091 坪 (包含車位面積)
- 主建物面積:30.861 坪
- 附屬建物面積:4.658 坪
- 共同使用:29.572 坪
- 車位坪數:8.001 坪
- 土地面積:5.333 坪
- 樓別/樓高: 25樓 / 25樓
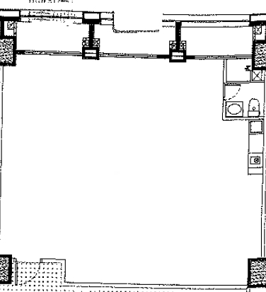
- 法定用途:辦公室
- 形式/類型:商用/ 電梯大樓
- 車位:坡道平面式
- 電梯:有
詳細資訊
特色說明
圖片介紹


地圖 (點擊顯示地圖)
我家AI分析|物件診斷一次看
本內容由AI輔助分析整理,僅供參考,實際情況仍建議依此房仲說明與個人需求判斷。
1. SWOT 分析
| 面向 | 內容 |
|---|---|
| 優勢 | 地段與交通優勢顯著:位於竹北市核心發展區,鄰近國道一號、68 快速道路及高鐵站,通勤與物流極其便利。 社區品牌效應強:「豐采 520」為當地指標性商辦案,A/B 棟規劃清晰,商場基底能提供人流與生活機能。 梯戶比優異:頂樓僅有 9 戶,共用四台電梯,無等待時間,確保使用隱私與效率。 車位包含在內:總坪數與總價皆含一坡道平面車位,省去額外購置停車位的成本。 |
| 劣勢 | 單價偏高:參考單價約 61.28 萬/坪,相較於一般商辦或住宅屬高標,需考量投資報酬率。 格局機能限制:僅有 1 衛、1 廳,若作為大型辦公空間使用,衛生間數量可能不足,動線需配合調整。 頂樓潛在風險:雖視野佳,但需考量夏季隔熱與防水耐用度,且高度較依賴電梯運轉效率。 商用產權限制:交易稅制與持有成本(如房屋稅、地價稅)通常高於住宅,且轉手流動性較差。 |
| 機會 | 企業形象需求:高樓層全景視野適合打造品牌形象中心或接待型辦公室,提升客戶信任感。 產業聚落效應:竹北鄰近科學園區,高科技人才與新創公司多,潛在租戶來源穩定。 價格談判空間:總價近 4000 萬屬高金額交易,對於急切賣方可能有議價機會。 |
| 威脅 | 市場景氣波動:商辦產品對經濟景氣較敏感,若企業減租或縮編,空置風險與租金承載力可能下降。 轉手不易:高額總價與商業產權性質,會壓縮潛在買家族群,未來變現時間可能拉長。 區域競品增加:竹北周邊新興商辦陸續推出,可能影響此物件的長期投資增值空間。 |
2. 物件評論
此物件位於竹北具指標性的「豐采 520」頂級樓層,擁有極佳的交通便利性與社區能見度,非常適合需要展現企業形象或依賴頻繁交通往來的專業人士購買。然而,高單價約 61 萬及頂樓特有的隔熱防水問題是需要務實評估的風險點,加上商辦持有成本較高且流動性不如住宅,若您購屋目的在於長期自用經營且能接受較長持有週期,此物件值得列為優先選項;但若以短期投資獲利為主要訴求,則需慎審考量租金回收率與市場供需變化。建議親自體驗高峰時段的電梯使用狀況及頂樓採光情況後再行決定。
問與答
聽鈞一席話
聽鈞一席話
胡鈞瑞(仲介,收取服務費)
暱稱:胡鈞瑞
專業品質:
服務態度:
房仲電話:0900-405888
訂閱:3 (加入)竹北高鐵帝寶 加盟店
經紀業名稱: 叡達不動產開發有限公司
證號: (108)登字第354315號
專任委託成交率→100%
專任委託送591VIP廣告,各大售屋網百則廣告,
威秀電影票兩張,成交還有精緻禮。
最強銷售團隊:一人委託.百人銷售
鈞瑞有的服務包含有傢俱 銀行 裝潢 油漆滲漏水
只要相關不動產都有合作方能幫您比對更優惠的價格
鈞瑞更樂於做房仲替客戶找尋到成家美窩的成就感,
因為每一戶成家與成交的背後都是一段故事。
鈞瑞將帶著從事服務業的精神,
站在您的立場設想優點缺點一定告知,
我賣的是價值與夢想。
成就每一段故事,打造一身成就感!
高鐵區【臻愛竹北】四房+B1平車 聽鈞一席話 房地不複雜
新竹縣 竹北市
新竹市湳雅商圈稀有建地 聽鈞一席話 房地不複雜
新竹市 北 區
專任-芎林邊間前院車位透天 聽鈞一席話 房地不複雜
新竹縣 芎林鄉
中豐路正台三線旁活巷低總價美透天 聽鈞一席話 房地不複雜
新竹縣 竹東鎮
星都匯.B區高樓層+平車 聽鈞一席話 房地不複雜
新竹縣 竹東鎮
南寮海濱段投資增值農地(1)聽鈞一席話 房地不複雜
新竹市 北 區
狂享海濱休閒生活的低總價五星級社區超大兩房車 聽鈞一席話 房地不複雜
新竹市 北 區
【新埔有水有電美農地】投資|自用皆宜 聽鈞一席話 房地不複雜
新竹縣 新埔鎮
近家樂福【福興路六米大面寬】臨路住店 聽鈞一席話 房地不複雜
新竹縣 竹北市
得鑫傑座2|竹東市區大三房+平車 聽鈞一席話 房地不複雜
新竹縣 竹東鎮
預約看屋
發問
收藏房屋土地
分享


我家粉絲團