三峽 捷運站
三峽買屋 /
三峽買房
-
三峽民生街禮河精緻2房 同心圓團隊美莉 鳳鳴重劃區大樓
預約看屋
更多優質好屋: 95
※ 房屋照片僅反應使用現況,用途以實際合法文件為準。若法定用途與現況不同,可能違法並有相關風險,請購屋或承租前詳加確認,以保障權益。
- 總價:1398 萬
- 參考單價:52.56 萬/坪
- 地址:
新北市
三峽區
民生街
地圖
🏷️ 查看區域實價登錄
- 社區:禮河
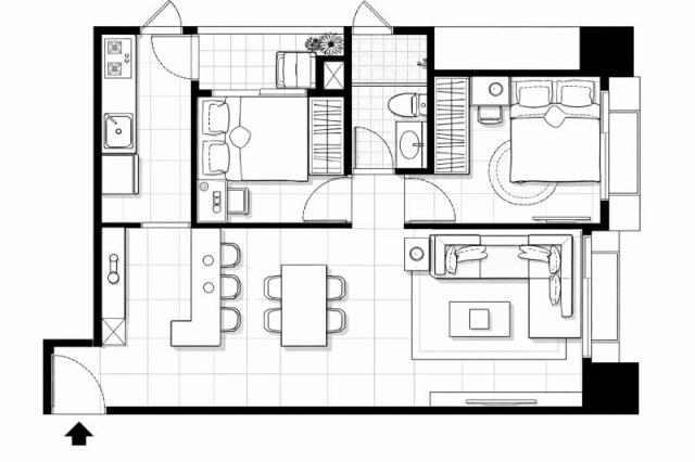
- 格局: 2房(室) 2廳 1衛 1陽台 1廚房
- 總坪數:26.6 坪 (不含車位面積)
- 樓別/樓高: 3樓 / 15樓
- 屋齡:7 年
- 法定用途:集合住宅
- 形式/類型:住宅/ 電梯大樓
- 電梯:有
詳細資訊
物件資訊內容以登記簿謄本或預售屋買賣契約為準,若有疑問請洽承辦人員。
特色說明
圖片介紹



















地圖 (點擊顯示地圖)
我家AI分析|物件診斷一次看
本內容由AI輔助分析整理,僅供參考,實際情況仍建議依此房仲說明與個人需求判斷。
買房者視角分析報告 (物件編號:1372367)
1. SWOT 分析
| 面向 | 內容 |
|---|---|
| 優勢 (Strengths) | 地段潛力佳:鄰近北大特區與鳳鳴重劃區,生活機能完善,商圈發展成熟。 交通便利:擁有公車、高速公路動線,且標榜未來捷運通車,交通性高。 屋況新穎:屋齡僅 7 年,屬於次新房態,居住舒適度高且無老舊維護隱憂。 社區管理好:社區戶數單純且管理嚴謹,能維持安靜優質的居住環境。 |
| 劣勢 (Weaknesses) | 格局限制:總坪數 26.6 坪僅含 1 衛浴,若有兩房以上居住需求,使用上可能稍顯緊湊。 樓層因素:3 樓位於中高樓層的底部,採光與隱私度略低於高樓層,且需仰賴電梯。 資訊混淆:資料中同時列出「巨合不動產」與「太平洋房屋」,經紀業態資訊不一致,可能造成後續交易作業的混亂。 |
| 機會 (Opportunities) | 增值潛力:隨著捷運即將通車及重劃區開發完成,未來房價上漲空間可期。 價格優勢:總價 1,398 萬對於該區域屬於入門級價位,適合首次購屋者或投資客進場。 生活便利性:周邊超市、市場與公園環繞,能滿足日常採買與休閒需求。 |
| 威脅 (Threats) | 交通噪音:雖標示為靜音社區,但臨近民生街主要道路,未來可能受車流噪音影響。 房價波動:總價處於百萬級距,需留意房市整體走勢及政策影響。 資訊真實性:因經紀業資訊不一致,需特別確認產權與合約細節,避免衍生糾紛。 |
2. 物件評論
這件物件對於首購族或看好三峽重劃區長期發展的投資者來說,具備一定的參考價值。主要優點在於屋齡新、社區環境單純,且位於北大特區旁的發展熱點,配合未來捷運通車的利多,長期居住與保值性可期。總價 1,398 萬的門檻相對親民,適合預算有限的購屋者。
建議購買理由:
- 性價比高:在該區域屬於低总价選擇,容易進入。
- 交通便利:雙鐵(捷運與交通動線)概念具加持。
- 居住品質:7 年屋齡搭配管理完善的社區,適合家庭居住。
注意事項: 由於資料顯示的經紀業資訊存在矛盾(巨合不動產 vs 太平洋房屋),建議您在聯繫詢問時務必釐清該筆房產實際由哪家業者代理、產權與買賣合約細節是否正確,確認無誤後再行議價,以保障自身權益。整體而言,若對格局與樓層無極高要求,是一個值得進一步看房並考慮的物件。
問與答
鳳鳴重劃區大樓
鳳鳴重劃區大樓
李美莉(仲介,收取服務費)
暱稱:李美莉 房仲阿莉姐
專業品質:
服務態度:
房仲電話:0917-550368
訂閱:0 (加入)太平洋房屋 鶯歌鳳鳴 加盟店
經紀業名稱: 巨合不動產經紀有限公司
證號: (101)登字第207676號
大家好,我是李美莉 0917550368,您的房地產夥伴,很高興能在這裡與您介紹自己!我以誠實、負責和細心為信念,希望能為您提供最優質的服務。擁有多年的房仲經驗,我專注於大樓、透天、店面、別墅、住家和商用等多個領域,尤其熟悉鳳鳴重劃區、北大特區、三峽與鶯歌等地的市場動態。
我相信,每一次的交易都是一段新的旅程,所以我會以熱情和幽默來陪伴您,讓整個過程更加輕鬆愉快。我的沉穩和謹慎特質為我們的合作提供了堅強的保障,確保每個細節都能被妥善處理。
如果您正在尋找房產的夥伴,或是對市場有任何疑問,請不要猶豫,與我聯繫!讓我們一起找到您理想中的家或投資機會,期待與您攜手合作!
李美莉 0917550368,鳳鳴重劃區,鳳鳴重劃區大樓,鳳鳴火車站,火車站,福德捷運站,捷運站,大湳交流道,交流道,鶯歌鳳鳴,鶯歌鳳鳴重劃區,豐邑泱泱,森藏,三發丰悅,森闊,四季琢硯,森悅,雙捷A+,三發地產,仰沐,森朵,鳳茗HOYO,森晴,宏苑,森耀,青松翫,合康,公園翫,微笑海悅2,鳳鳴尊邸,和瑞微美,景程禾雅,大華建設,富御昕,森朗,寶佳,澄果建設,京澄為知,八方喜樂,菁英薈2,微笑海悅1,和耀心綻,鳳鳴欣苑,金和昌建設,菁英薈1,森睦,捷市匯,森鉅承,幸福莊園1,幸福莊園2,僑駿響,豐邑日日,立僅Way,鶯桃路,桃鶯路,鶯歌路,鳳鳴路,鳳一路,鳳三路,鳳五路,鳳七路,鳳福路,龍一路,龍三路,龍五路,龍七路,永和街,鳳吉一街,鳳吉二街,鳳吉三街,鳳吉四街,鳳吉五街,大湖路,西湖街,福德一路,福德二街,福德三街,福德四街,福德五街,興隆街,南僑巷,桃和街,華安街,鳳鳴一巷,福隆一街,福隆二街,國際一路,國際二路,國際新城,
北大耶魯迎水入堂聚財景觀3房車 同心圓團隊美莉 北大特區
新北市 三峽區
專約 三峽峇里島北區3房平車 同心圓團隊美莉 鳳鳴重劃區大樓
新北市 三峽區
鶯歌鳳吉全新整理公寓3加1房 同心圓團隊美莉 鳳鳴重劃區大樓
新北市 鶯歌區
北大遠雄京都3房平車露臺/獨立管線 同心圓團隊美莉 北大特區
新北市 樹林區
鶯歌火車站山河戀景觀美3房 同心圓團隊美莉 鳳鳴重劃區大樓
新北市 鶯歌區
鶯歌鳳鳴和耀心綻漂亮採光2房車 同心圓團隊美莉 鳳鳴重劃區大樓
新北市 鶯歌區
專約 三峽峇里島北區3房平車 太平洋同心圓團隊美莉 鳳鳴重劃區大樓
新北市 三峽區
鶯歌陽光閣廈尖山學區漂亮三房車 太平洋同心圓團隊美莉 鳳鳴重劃區大樓
新北市 鶯歌區
龜山幸福美妝成家公寓3房 太平洋同心圓團隊美莉 鳳鳴重劃區大樓
桃園市 龜山區
三峽國賓公園安居大3房 太平洋同心圓團隊美莉 鳳鳴重劃區大樓
新北市 三峽區
預約看屋
發問
收藏房屋土地
分享



















我家粉絲團