清水市場
清水買屋 /
清水買房
-
海線房屋配對|富宇大悅|低於實登全新三房平車
※以上照片若為街景,為物件附近環境介紹,非刊登物本身。
預約看屋
更多優質好屋: 19
※ 房屋照片僅反應使用現況,用途以實際合法文件為準。若法定用途與現況不同,可能違法並有相關風險,請購屋或承租前詳加確認,以保障權益。
影音專區
詳細資訊
特色說明
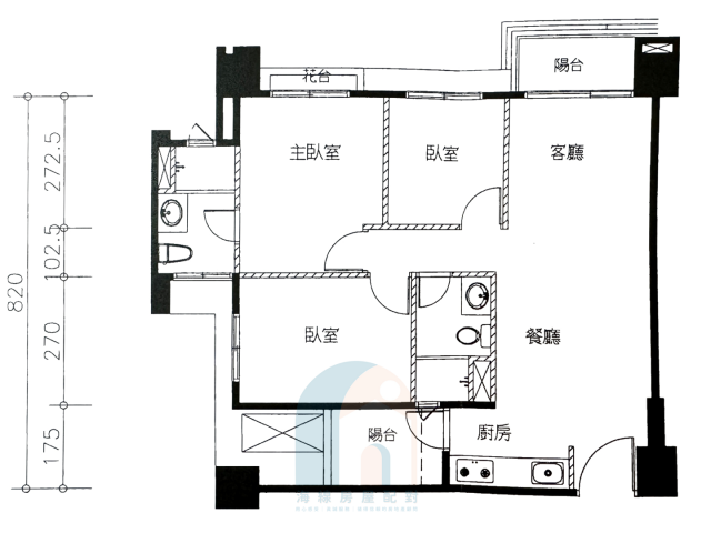
圖片介紹













地圖 (點擊顯示地圖)
問與答
賣家資訊
海線房屋配對
賴俐文(仲介,收取服務費)
暱稱:賴俐文
專業品質:
服務態度:
房仲電話:0966-092290
讚:1 (加入)太平洋房屋 清水中山旗艦店 其他
經紀業名稱: 田豐不動產有限公司
證號: (112)登字第437446號
海線房屋配對 賴俐文 0966-092-290
歡迎來我做的個人網站看看:
https://housematchmaker112.wixsite.com/my-site-1
預約看屋
發問
收藏房屋土地
分享














我家粉絲團