中壢買屋 /
中壢買房
-
青埔過嶺買房 宜誠耀-中壢過嶺好市多商圈-3+1高檔裝潢宅
預約看屋
更多優質好屋: 114
※ 房屋照片僅反應使用現況,用途以實際合法文件為準。若法定用途與現況不同,可能違法並有相關風險,請購屋或承租前詳加確認,以保障權益。
- 總價:2028 萬 (含車位價)
- 參考單價:33.06 萬/坪
- 地址:
桃園市
中壢區
松義路
地圖
🏷️ 查看區域實價登錄
- 社區:宜誠耀
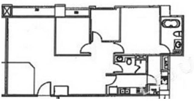
- 格局: 3房(室) 2廳 2衛
- 總坪數:61.337 坪 (包含車位面積)
- 主建物面積:32.047 坪
- 附屬建物面積:3.515 坪
- 共同使用:25.775 坪
- 車位坪數:10.566 坪
- 土地面積:6.332 坪
- 樓別/樓高: 5樓 / 18樓
- 屋齡:9 年
- 法定用途:集合住宅
- 形式/類型:住宅/ 電梯大樓
- 車位:坡道平面式
- 電梯:有
詳細資訊
特色說明
圖片介紹

















地圖 (點擊顯示地圖)
我家AI分析|物件診斷一次看
本內容由AI輔助分析整理,僅供參考,實際情況仍建議依此房仲說明與個人需求判斷。
1. SWOT 分析
| 面向 | 內容 |
|---|---|
| 優勢 (Strengths) | 交通便利性高:鄰近國道 66 號,約 15 分鐘可達高鐵站或捷運,非常適合通勤族; 生活機能成熟:位於過嶺商圈核心,步行即可抵達好市多,日常採買與消費極其便利; 坪效優勢:總價約 2,028 萬元已包含車位,且擁有 61.337 大坪數的 3+1 格局,客廳空間寬敞,空間利用率高; 住家品質:一層僅 4 戶配置 2 支電梯,等候時間短;低樓層 5 樓視野開闊且採光充足,不受陰暗困擾。 |
| 劣勢 (Weaknesses) | 屋齡因素:建築屋齡已達 9 年,非全新成屋,購屋前需詳細檢查水電及公共設施維護狀況; 臨路影響:房屋直接面臨道路,雖採光佳,但可能伴隨車流噪音或隱私度較低的問題; 總價門檻:近 2,000 萬元的總價位對於小家庭或年輕購屋族而言仍是一筆不小的開銷。 |
| 機會 (Opportunities) | 學區價值:鄰近中平國小與過嶺國中,若家有學童將能享受優質且方便的就學資源; 租金需求:通勤便利與成熟商圈優勢,適合長期出租給中高收入通勤族群或新世代家庭; 裝修省錢:標榜高檔裝潢宅,若裝修水準良好,可大幅節省購屋後重新整修的時間與成本。 |
| 威脅 (Threats) | 市場波動風險:整體房市目前處於修正期,房價增值潛力可能受到市場氛圍影響; 交通噪音升級:隨著區域發展成熟,松義路車流量若持續增加,長期居住舒適度可能會下降; 競爭對手:青埔及過嶺周邊新案林立,未來轉手時需與較新的社區產品進行價格競爭。 |
2. 物件評論
購買建議:值得考慮,適合追求生活機能與通勤效率的家庭。
此物件整體而言是一個性價比不錯的選擇,主要理由如下:首先,其總價已包含車位且為「坡道平面式」停車,在當前行情下能有效降低購屋成本;其次,位於過嶺黃金地段,靠近好市多及國道 66 號,生活機能與通勤便利性極高,非常實用。
不過,由於房屋面臨道路且屋齡已約 9 年,建議您在簽約前務必親自探訪,特別注意不同時段的噪音狀況,並確認社區的管理維護情況良好。若您不介意外觀稍微成熟,而更重視居住空間的實用度與周邊生活便利性,這棟房子是值得入手的良選。
問與答
青埔過嶺買房
青埔過嶺買房
過嶺店(仲介,收取服務費)
暱稱:過嶺店
專業品質:
服務態度:
房仲電話:0935-239901
訂閱:0 (加入)過嶺 加盟店
經紀業名稱: 鴻耀不動產有限公司
證號: (102)登字第254902號
?家是什麼?家是一份重擔,家是一份責任;
?家是彼此的真誠相待,家更是能夠白頭偕老的慢慢旅程。
?家是我們人生的驛站,是我們生活的樂園,也是我們避風的港灣。
?幸福成家~家入青埔一個「靜 善 境 美 」的居住環境
讓家入青埔領航團隊 為您幸福圓夢、幸福成家?
青埔過嶺買房 請指名社區小巢03-4903391
室內電話:034903391
青埔過嶺買房 中壢好市多公園宅-京沅綻2房車高檔裝潢採光佳
桃園市 中壢區
青埔過嶺買房 盛竑時代-中壢過嶺好市多-全新稀有四
桃園市 新屋區
青埔過嶺買房 近月桃路合法小資材室-六米路美農地
桃園市 觀音區
青埔過嶺買房 客運園區璟都艾美全新精美次頂樓三房車
桃園市 大園區
青埔過嶺買房 青景喆露臺戶|全新完工|股東保留戶|中壢好市多
桃園市 觀音區
青埔過嶺買房 傳家寶16期|中壢過嶺好市多生活圈|雙車位屋齡新
桃園市 觀音區
青埔過嶺買房 中壢好市多商圈-宜誠耀次頂樓質感3房車
桃園市 中壢區
青埔過嶺買房 稀有大地坪整棟透天|過嶺好市多商圈
桃園市 楊梅區
青埔過嶺買房 名馳雋朗2期社區/3房平車/中壢中央大學商圈
桃園市 楊梅區
青埔過嶺買房 新傳新遠景|中壢過嶺中央大生活圈|2房2衛平面車
桃園市 新屋區
預約看屋
發問
收藏房屋土地
分享

















我家粉絲團