水湳經貿大面寬電梯透
北屯買屋 /
北屯買房
-
水湳經貿大面寬電梯透套
影音專區
詳細資訊
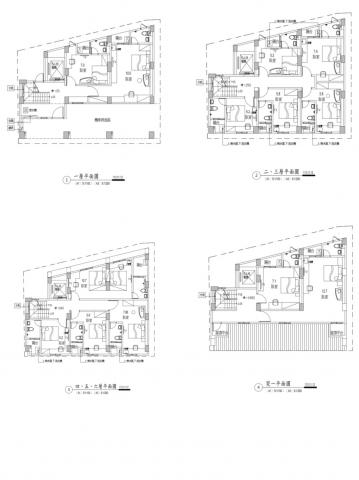
朝向方位:坐西南朝東北
鄰近學校:市立仁愛國小 ,市立大德國中
鄰近公園:敦化公園
生活機能:水湳市場.愛買水湳店
面臨路寬:8米
物件資訊內容以登記簿謄本或預售屋買賣契約為準,若有疑問請洽承辦人員。
特色說明
圖片介紹




















地圖 (點擊顯示地圖)
問與答
賣家資訊
台中土地房屋
彭孝真(仲介,收取服務費)
暱稱:彭孝真
專業品質:
服務態度:
房仲電話:0966-388147
讚:33 (加入)住商不動産 北屯四平 加盟店
經紀業名稱: 好事興不動產仲介開發有限公司
證號: (92)登字第026362號
台中土地房屋 北屯土地房屋 北屯農地 潭子土地房屋 您的房地產顧問,專業經營房地產買賣、不動產銷售,台中不動產 深耕台中土地房屋 台中14期 捷運區段徵收土地 十期重劃區土地房屋、新光區段徵收建地房屋、廍子區段徵收建地房屋,14單元重劃區土地房屋、13單元重劃區、12單元重劃區土地建地房屋。北屯土地房屋別墅透天店面。台中買地建屋。
您好,我是專業房仲彭孝真,擁有多年的房地產經驗,致力於為每位客戶提供誠實、細緻的服務。我深信,負責任的態度及對細節的專注是成功交易的關鍵。我熟悉本地市場動態,擅長於台中14期土地房屋社區的交易,不僅能夠為您提供專業的市場分析,還能幫助您找到最符合需求的理想物件。
在我的職業生涯中,我榮獲過許多獎項,這不僅是對我專業能力的肯定,也鼓勵我持續追求卓越。我具備良好的同理心,能夠理解客戶的需求,並提供量身訂做的解決方案。在進行每一次交易時,我始終以謹慎的態度來保護客戶的利益。
我真誠邀請您隨時聯繫我,無論是尋找理想的家或是了解市場趨勢,我都樂意成為您可靠的合作夥伴。請撥打 0966-388-147,讓我們一起實現您的投資置產夢想!
預約看屋
發問
收藏房屋土地
分享




















預約看屋

我家粉絲團