電梯別墅交流道園區
頭份買屋 /
頭份買房
-
頭份透天建案 全新園區幸福大面寬前庭雙車電梯美墅C
預約看屋
更多優質好屋: 41
※ 房屋照片僅反應使用現況,用途以實際合法文件為準。若法定用途與現況不同,可能違法並有相關風險,請購屋或承租前詳加確認,以保障權益。
- 總價:2680 萬 (含車位價)
- 參考單價:28.8 萬/坪
- 地址:
苗栗縣
頭份市
中華路
地圖
🏷️ 查看區域實價登錄
- 社區:4室順薪/晴境幸福
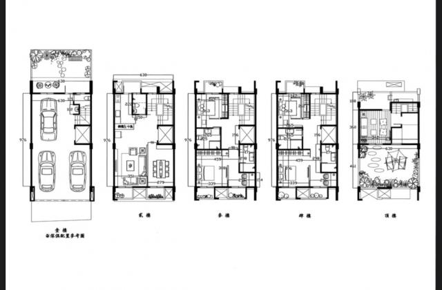
- 格局: 4房(室) 3廳 6衛
- 總坪數:93.058 坪 (不含車位面積)
- 主建物面積:86.324 坪
- 附屬建物面積:6.734 坪
- 土地面積:49.55 坪
- 樓別/樓高: 整棟 / 4樓
- 屋齡:6 年
- 法定用途:集合住宅
- 形式/類型:住宅/ 別墅
- 車位:庭院式
- 車位描述:前庭雙車位
- 電梯:有
房市行情分析
詳細資訊
特色說明
圖片介紹




















地圖 (點擊顯示地圖)
我家AI分析|物件診斷一次看
本內容由AI輔助分析整理,僅供參考,實際情況仍建議依此房仲說明與個人需求判斷。
SWOT 分析
| 面向 | 內容 |
|---|---|
| 優勢 (Strengths) | 價格與坪數具競爭性:總價 2680 萬元,總坪數約 93 坪,單價約 28.8 萬元,在頭份電梯透天市場中具備高性價比。 格局適合大家庭:4 房 6 衛 3 廳的空間規劃,配合每個房間皆有對外窗,非常適合三代同堂或需頻繁訪客的家族居住。 停車與空間機能:擁有雙車位庭院式停車(未計入總坪數),且 4 樓設有大型露台,提供居家綠化或休閒的額外空間。 屋況新穎:屋齡僅 6 年,建材與設備狀態良好,入住後初期維修需求較低。 地理位置優越:鄰近頭份園區,通勤方便,周邊有早市、全聯與麥當勞,生活機能成熟。 |
| 劣勢 (Weaknesses) | 維護成本高:近 100 坪的空間搭配 6 間衛浴與大露台,日常清潔、水電消耗及未來可能的維修基金提撥成本較高。 設備折舊風險:電梯使用已達 6 年,可能面臨過了保固期後的維修或更新需求。 潛在噪音干擾:地址位於中華路,臨路住宅可能受到日間車流量產生的噪音影響,需注意隔音效果。 轉手流動性:位於頭份非台北核心區,相比北都區域,二手市場的交易流動性與價差潛力可能較低。 |
| 機會 (Opportunities) | 區域增值潛力:緊鄰頭份園區,隨著產業發展與就業人口流入,未來租金需求與房價上漲動能可期。 自用品質提升:大面寬與露台設計提供優越的居住品質,可規劃為空中花園,滿足對生活質感有要求的買家。 市場調整空間:在房地產盤整期,此類高單價優質物件可能擁有較大的議價空間。 |
| 威脅 (Threats) | 利率負擔:目前房貸利率仍處相對高檔,高總價物件對購屋者的財務負擔較重,需謹慎評估償債能力。 景氣波動:房市市場若持續冷卻,房價可能呈現橫盤,短期投資回報率可能不如預期。 新案競爭:周邊若有新推案或新成屋釋出,可能會分流買氣,影響二手屋的議價與脫手速度。 |
物件評論
是否值得購買:值得考慮
此物件對於在頭份或竹南一帶工作、擁有三代同堂需求的買家而言,具有高度購買價值。主要理由在於其性價比極高,以 2680 萬的價格獲得 93 坪電梯透天與完善格局,且屋況新穎,無需大量整修即可入住。此外,鄰近園區與成熟商圈的地點優勢,保障了未來的居住便利性與資產保值性。建議購買者在簽約前,務必確認電梯維修狀況、房屋結構以及是否有隱性修繕費用,並評估自身對高坪數空間的維護意願,即可安心購入。
問與答
頭份透天建案
頭份透天建案
林小雅(仲介,收取服務費)
暱稱:林小雅
專業品質:
服務態度:
房仲電話:0909-815675
訂閱:2 (加入)頭份建國信東 加盟店
經紀業名稱: 令和不動產經紀有限公司
證號: (109)登字第364106號
頭份透天建案 林小雅 0909-815-675
頭份透天建案【賦閣居】中央大道景觀尊榮平車名邸
苗栗縣 頭份市
頭份透天建案 頭份正市區精華地段稀有大四房美廈
苗栗縣 頭份市
頭份透天建案造橋天生贏家『英佳豪邸』全新科技雙車美墅-A2
苗栗縣 造橋鄉
頭份透天建案 頭份交流道旁建國雙學區雙車花園美墅
苗栗縣 頭份市
頭份透天建案【享家】竹南輕屋齡三房平車智能宅
苗栗縣 竹南鎮
臨61快速道路桃科園區全新員工宿舍86間電梯套房 |頭份透天建案
桃園市 觀音區
頭份透天建案 專任市區豪氣旺旺超值三房平車美廈
苗栗縣 頭份市
頭份透天建案 雲端雲朗|大埔全新電梯精品美墅-B1
苗栗縣 竹南鎮
頭份透天建案 專任頭份氧樂多15米大棟距雙車美墅.氧樂多A6
苗栗縣 頭份市
頭份透天建案 頭份建國商圈【辰翔呈祥6】三房平車美廈
苗栗縣 頭份市

預約看屋
發問
收藏房屋土地
分享




















我家粉絲團