立新國小、立新國中
大里買屋 /
大里買房
-
大里立新學區前院停車透天
預約看屋
更多優質好屋: 12
※ 房屋照片僅反應使用現況,用途以實際合法文件為準。若法定用途與現況不同,可能違法並有相關風險,請購屋或承租前詳加確認,以保障權益。
- 總價:
1588 萬
1498 萬 - 參考單價:27.7 萬/坪
- 地址:
台中市
大里區
公教街
地圖
🏷️ 查看區域實價登錄
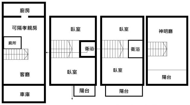
- 格局: 4房(室) 3廳 3衛
- 總坪數:54.08 坪 (不含車位面積)
- 土地面積:24.6 坪
- 樓別/樓高: 1~4樓 / 4樓
- 屋齡:33 年
- 法定用途:住家用
- 形式/類型:住宅/ 別墅
房市行情分析
詳細資訊
朝向方位:坐東南朝西北
鄰近學校:立新國小、立新國中
生活機能:十九甲傳統市場
附近交通:74號快速道路
面臨路寬:6米
物件資訊內容以登記簿謄本或預售屋買賣契約為準,若有疑問請洽承辦人員。
特色說明
圖片介紹























地圖 (點擊顯示地圖)
我家AI分析|物件診斷一次看
本內容由AI輔助分析整理,僅供參考,實際情況仍建議依此房仲說明與個人需求判斷。
1. SWOT 分析
| 面向 | 內容 |
|---|---|
| 優勢 (Strengths) | 1. 學區優勢顯著:坐落於立新國小、立新國中雙學區範圍,生源需求穩定,增值與租賃潛力佳。 2. 總價親民:總價約 1,498 萬,參考單價 27.7 萬/坪,在台中大里區屬合理價位,適合預算有限的購屋族。 3. 結構與配套:RC 鋼筋混凝土結構安全性高,有天然氣、前院停車便利,且臨近 6 米寬道路。 4. 生活機能成熟:鄰近十九甲傳統市場,日常採買生活機能完善。 |
| 劣勢 (Weaknesses) | 1. 屋齡較長:屋齡 33 年,未來可能需投入整修預算(如防水、管線更新),且部分買家對老屋抗性較高。 2. 樓層空間限制:4 樓透天未提及電梯配置,對長者或行動不便者較不便,且高樓層可能有熱度與漏水風險。 3. 坪效考量:總坪數 54 坪分佈於 4 層,平均每層空間相對緊湊,若格局傳統可能需重新規劃。 4. 交易流程:傳統格局可能與現代生活需求(如動線、採光)有落差。 |
| 機會 (Opportunities) | 1. 交通利多:74 號快速道路十九甲匝道即將完工,將大幅提升通往台中市中心或國道 3 號的便利性,提升未來轉手流動性。 2. 整修增值:利用 RC 結構穩定性進行現代化裝潢,可提升居住品質或租金收益率。 3. 置產時機:在高利息環境下,此價位仍具競爭力,對於重視學區的家庭而言,是進場的良好切入點。 |
| 威脅 (Threats) | 1. 市場環境:房價高點後可能面臨震盪,且老舊房屋在市場冷卻期流動性可能較新案慢。 2. 利率風險:目前房貸利率維持高檔,購屋資金規劃需特別留意。 3. 維護成本:隨著屋齡增加,公共設施或社區(雖為透天但需留意鄰里環境)維護成本可能上升,影響長期持有任何。 |
2. 物件評論
是否值得購買: 值得考慮,特別適合重視教育資源與交通潛力的家庭購屋者。
主要理由: 此物件最大的亮點在於其**「立新學區」與「交通改善利多」**。在大里區而言,雙學區與 74 號快速道路新匝道的加持,能保障房產的基本需求與未來增值潛力。RC 結構與合理單價降低了購屋風險,且总价 1,500 萬以下在台中區段具相當吸引力。
建議: 鑑於屋齡已達 33 年,強烈建議您在簽約前請專業驗屋師進行詳細檢測,評估屋頂、防水及管線狀況,並預留適當的整修預算。此外,請親自體驗 4 樓爬樓梯的動線是否符合家庭成員(包含長輩與孩童)的實際需求。若您能接受老屋維護特性並看重學區價值,這是一筆具實質居住與資產價值的標的。
問與答
霧峰大里買房
霧峰大里買房
蔡怡婷(仲介,收取服務費)
暱稱:蔡怡婷
專業品質:
服務態度:
房仲電話:0938-123122
訂閱:1 (加入)大里中興中山特許 加盟店
經紀業名稱: 美居不動產經紀有限公司
證號: (108)登字第349298號
霧峰大里買房 蔡怡婷 0938123122
大家好,我是專業的房地產經紀人,擁有多年的從業經驗,專注於透天、電梯大樓、別墅、平房、建地及廠房的銷售。我以誠實、負責和專業著稱,始終把客戶的需求放在首位,並致力於提供最優質的服務。
在我獲得的多項專業獎項中,不論是銷售成績還是客戶滿意度,都是對我工作的最佳肯定。在不動產相關稅務規劃方面,我也能提供專業的建議,幫助客戶做出最明智的投資決策。
我主要服務於霧峰、大里區及多個商圈,包括大里塗城商圈、成功商圈、霧峰中正商圈、樹仁商圈等特色地區,了解當地市場動態,為客戶提供最具價值的投資資訊。
如果您正在尋找專業且值得信賴的房地產經紀人,歡迎隨時聯繫我,讓我們一起找到您理想中的家!
預約看屋
發問
收藏房屋土地
分享























我家粉絲團