電梯大樓、兩房、車位
新莊買屋 /
新莊買房
-
宏普賓麗優選大兩房 誠億地產
※以上照片若為街景,為物件附近環境介紹,非刊登物本身。
預約看屋
更多優質好屋: 45
※ 房屋照片僅反應使用現況,用途以實際合法文件為準。若法定用途與現況不同,可能違法並有相關風險,請購屋或承租前詳加確認,以保障權益。
詳細資訊
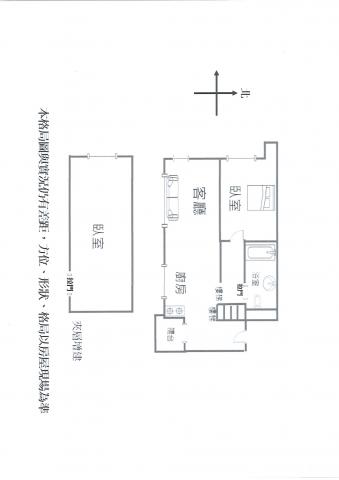
圖片介紹









地圖 (點擊顯示地圖)
問與答
賣家資訊
誠億地產
誠億地產(仲介,收取服務費)
暱稱:誠億地產
專業品質:
服務態度:
房仲電話:0285-220001
讚:2 (加入)台灣房屋 A3中央 加盟店
經紀業名稱: 誠億地產有限公司
證號: (99)登字第150129號
誠億地產 孫億傑 0935188276 許靜怡 0952810833
室內電話:0285220001
預約看屋
發問
收藏房屋土地
分享











我家粉絲團