北屯買屋 /
北屯買房
-
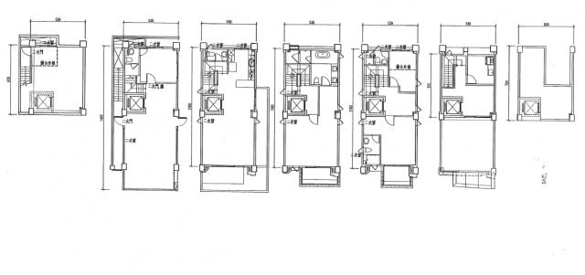
北屯12單元 全新完工獨棟電梯豪墅
預約看屋
更多優質好屋: 132
※ 房屋照片僅反應使用現況,用途以實際合法文件為準。若法定用途與現況不同,可能違法並有相關風險,請購屋或承租前詳加確認,以保障權益。
詳細資訊
特色說明
圖片介紹














地圖 (點擊顯示地圖)
問與答
賣家資訊
西屯華廈大樓
孫延坤(仲介,收取服務費)
暱稱:孫延坤
專業品質:
服務態度:
房仲電話:0913-893928
讚:0 (加入)12期逢大福星 加盟店
經紀業名稱: 金宥不動產有限公司
證號: (97)登字第110356號
西屯華廈大樓 孫延坤 0913893928
文心國小捷運站旁高樓四房雙主臥視野戶附車位
台中市 北屯區
逢甲文修公園西安街新整理精美大套
台中市 西屯區
西區草悟道審計旁空間規劃超大4房B1平車
台中市 西 區
北屯蛋黃區輕屋齡三面採光三房休旅車位自在柳陽
台中市 北屯區
中科田園電梯雙車美別墅 西屯華廈大樓
台中市 西屯區
機捷特區|惠宇一方庭|全新未住次頂樓大三房平車雙平 西屯華廈大樓
台中市 北屯區
十二期裕森林質感社區低於實登精裝兩房平車西屯華廈大樓
台中市 西屯區
十二期近中科&水湳|面公園三房充電樁平車
台中市 西屯區
北屯總太聚作高指名社區秒殺案二房二衛尬平車
台中市 北屯區
機捷特區惠宇敦北最符實登大三房平車質感裝潢戶
台中市 北屯區

預約看屋
發問
收藏房屋土地
分享















我家粉絲團