中平國小、過嶺國中、
中壢買屋 /
中壢買房
-
青埔過嶺買房知名建商【冠鼎建設】|鄉根別墅|中壢好市多過嶺
預約看屋
更多優質好屋: 114
※ 房屋照片僅反應使用現況,用途以實際合法文件為準。若法定用途與現況不同,可能違法並有相關風險,請購屋或承租前詳加確認,以保障權益。
- 總價:1698 萬
- 參考單價:26.73 萬/坪
- 地址:
桃園市
中壢區
過嶺路一段
地圖
🏷️ 查看區域實價登錄
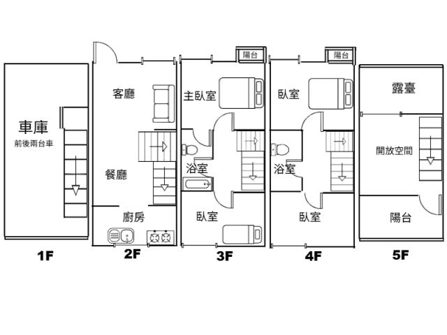
- 格局: 4房(室) 3廳 2衛
- 總坪數:63.535 坪 (不含車位面積)
- 主建物面積:59.723 坪
- 附屬建物面積:3.812 坪
- 樓別/樓高: 1~5樓 / 5樓
- 屋齡:27 年
- 法定用途:住家用
- 形式/類型:住宅/ 別墅
- 車位:獨立車庫
- 車位描述:停自有地
詳細資訊
管理費:2000 元/月
管理描述:月繳
鄰近學校:中平國小、過嶺國中、中央大學
生活機能:好市多、全聯
附近交通:高鐵桃園站
物件資訊內容以登記簿謄本或預售屋買賣契約為準,若有疑問請洽承辦人員。
特色說明
圖片介紹





















地圖 (點擊顯示地圖)
我家AI分析|物件診斷一次看
本內容由AI輔助分析整理,僅供參考,實際情況仍建議依此房仲說明與個人需求判斷。
物件分析報告
1. SWOT 分析
| 面向 | 內容 |
|---|---|
| 優勢 (Strengths) | 1. 知名建商信賴度:由冠鼎建設打造,社區品質與工法相對有保證,保值性較佳。 2. 空間規劃優越:總坪數超過 63 坪,擁有四房三廳格局,適合多人口家庭居住,使用率極高。 3. 停車空間充足:配備獨立車庫,可容納兩台車輛,解決一般住宅停車難題。 4. 交通與生活機能:鄰近過嶺路、高鐵桃園站及 66 快速道路,往返雙北便利;周邊有好市多、全聯,且步行可達學校。 |
| 劣勢 (Weaknesses) | 1. 屋齡較長:屋齡已達 27 年,管線老化或需局部翻新的機率較高,潛在維護成本需納入預算。 2. 衛浴配置略顯不足:四房配兩衛對於大家庭而言,晨昏尖峰時段可能略感擁擠。 3. 樓層位置考量:位於 5 樓,若為透天式結構,爬樓對長輩或小孩上下學便利性稍差,且恐需確認是否有電梯或坡度設計。 |
| 機會 (Opportunities) | 1. 區域發展潛力:青埔過嶺生活圈持續升溫,鄰近中壢區核心與高鐵特區,長遠持有價值看好。 2. 居家改造空間:老屋具有高度改裝彈性,可依個人喜好重新規劃內部動線與外觀,增加居住舒適度。 3. 學區優勢:鄰近中央大學、過嶺國中等學校,若考慮子女教育或未來轉租學生群,具一定市場吸引力。 |
| 威脅 (Threats) | 1. 新案競爭壓力:同區域內若有較新的建案推出,且價位相近,可能削弱此屋齡物件的買賣競爭力。 2. 貸款審貸難度:高單價老屋在某些銀行評估下可能受限於貸額或年齡計算,影響資金周轉。 3. 市場利率波動:高昂總價面對潛在的升息環境,房貸利息負擔將相對沉重。 |
2. 物件評論
綜合以上分析,此物件對於「重視居住空間與生活圈品質」的家庭來說,是一筆值得考慮的資產。
購買建議: 若您預算充足(約 1698 萬),且家中成員需要大空間或長輩需獨立生活機能,此物件具備高度的入住價值。冠鼎建設的工法在老房中仍屬難得,加上兩車位車庫與前院綠地,提供了稀缺的生活質感。
主要理由:
- 土地與空間稀缺性:63 坪以上的透天格局在近郊區已極為稀少,且含獨立車庫,使用成本效益高。
- 地段優勢明顯:過嶺生活圈結合高鐵、66 快速道路與學區資源,進可攻(投資增值)、退可守(自住便利)。
- 需注意屋齡隱憂:購買前務必安排專業技師檢測管線與結構安全,並預留翻新基金,以平衡長遠的維護成本。
若能接受 27 年屋齡的潛在維修需求,換取寬敞的空間與優越的交通位置,此物件在市場上具備一定的稀缺競爭力。
問與答
青埔過嶺買房
青埔過嶺買房
過嶺店(仲介,收取服務費)
暱稱:過嶺店
專業品質:
服務態度:
房仲電話:0935-239901
訂閱:0 (加入)過嶺 加盟店
經紀業名稱: 鴻耀不動產有限公司
證號: (102)登字第254902號
?家是什麼?家是一份重擔,家是一份責任;
?家是彼此的真誠相待,家更是能夠白頭偕老的慢慢旅程。
?家是我們人生的驛站,是我們生活的樂園,也是我們避風的港灣。
?幸福成家~家入青埔一個「靜 善 境 美 」的居住環境
讓家入青埔領航團隊 為您幸福圓夢、幸福成家?
青埔過嶺買房 請指名社區小巢03-4903391
室內電話:034903391
青埔過嶺買房 中壢過嶺好市多-名馳夏朵超低總價三房車
桃園市 新屋區
青埔過嶺買房 找樂子高樓層低總價-兩房車位-過嶺好市多商圈
桃園市 中壢區
青埔過嶺買房 青景喆全新完工|建商釋出帝王樓層|中壢好市多商圈
桃園市 觀音區
青埔過嶺買房 稀有大地坪整棟透天|過嶺好市多商圈
桃園市 楊梅區
青埔過嶺買房 巴頓工業區稀有廠辦稀有釋出大車進出方便
桃園市 龜山區
青埔過嶺買房 新坡市區新生路|路寬約七米路|大地坪買地送屋
桃園市 觀音區
青埔過嶺買房 NY好漾社區2房/中壢好市多商圈/高樓層無敵視野
桃園市 中壢區
青埔過嶺買房 中壢國泰街大面寬雙拼別墅25間套房買來當房東
桃園市 中壢區
青埔過嶺買房 中壢過嶺好市多|大清城双全新未入住2房車
桃園市 中壢區
青埔過嶺買房 中路+縣府特區重劃區全新整理大空間三房車 機能佳
桃園市 桃園區
預約看屋
發問
收藏房屋土地
分享





















我家粉絲團