安南區電梯大樓預售屋
安南買屋 /
安南買房
-
湖映白角間4房雙平車公園學校雙景超強景觀宅
預約看屋
更多優質好屋: 120
※ 房屋照片僅反應使用現況,用途以實際合法文件為準。若法定用途與現況不同,可能違法並有相關風險,請購屋或承租前詳加確認,以保障權益。
- 總價:2168 萬 (含車位價)
- 參考單價:29.73 萬/坪
- 地址:
台南市
安南區
樂活路
地圖
🏷️ 查看區域實價登錄
- 社區:湖映白
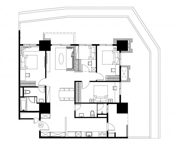
- 格局: 4房(室) 2廳 2衛 2陽台 1廚房
- 總坪數:72.93 坪 (包含車位面積)
- 主建物面積:31.27 坪
- 附屬建物面積:3.71 坪
- 共同使用:37.95 坪
- 土地面積:5.84 坪
- 樓別/樓高: 4樓 / 35樓
- 屋齡:0 年
- 法定用途:集合住宅
- 形式/類型:住宅/ 電梯大樓
- 車位:坡道平面式
- 車位描述:雙車位
- 電梯:有
詳細資訊
朝向方位:坐南朝北
鄰近學校:九份子國中小
鄰近公園:中央水路景觀公園
生活機能:國安市場、全聯超市
面臨路寬:10米
物件資訊內容以登記簿謄本或預售屋買賣契約為準,若有疑問請洽承辦人員。
特色說明
圖片介紹














地圖 (點擊顯示地圖)
我家AI分析|物件診斷一次看
本內容由AI輔助分析整理,僅供參考,實際情況仍建議依此房仲說明與個人需求判斷。
1. SWOT 分析
| 面向 | 內容 |
|---|---|
| 優勢 (Strengths) | 1. 產品稀缺性高: 總坪數達 72.93 坪且含雙車位,空間寬敞度極具吸引力。 2. 核心地段與景觀: 位於九份子精華區,正對萬坪中央水路景觀公園,且為地標建築。 3. 教育資源優渥: 鄰近雙語國中小,對於重視子女教育的家庭非常友善。 4. 居住環境新穎: 屋齡 0 年,採光與設施皆屬最新規格,省卻修繕成本。 |
| 劣勢 (Weaknesses) | 1. 樓層偏低: 位於 35 層大樓的 4 樓,雖避開了頂樓問題,但視角、隱私性與噪音干擾可能不如中高楼层。 2. 總價門檻高: 單價近 30 萬,總價 2168 萬對一般購屋者而言預算壓力較大。 3. 流動性挑戰: 大坪數產品在二手市場上的接盤客群相對較小,未來轉手週期可能較長。 |
| 機會 (Opportunities) | 1. 交通建設紅利: 北外環四期建設將連結南科與本區,預計提升通勤效率與區域價值。 2. 產業人口進駐: 鄰近南科的高薪族群有強勁的居住需求,有利於租金表現或資產增值。 3. 商圈成熟度提升: 周遭和緯、海佃商圈日益完善,生活機能滿足度高。 |
| 威脅 (Threats) | 1. 區域新案競爭: 安南區新建案密集,供應量可能影響未來單價走勢。 2. 高價位風險: 若整體房市景氣 downturn,高額總價資產的跌幅波動通常較大。 3. 環境變數: 臨近水路公園雖景觀好,但需考量季節性濕度或蟲蚊等潛在居住干擾。 |
2. 物件評論
結論:適合資金充裕且以長期自住為主的改善型買家。
此物件最大的賣點在於「空間感」與「環境資源」。在安南區能擁有近 73 坪的大單位,且兼具雙車位、學區與公園景觀,在同級距產品中極具競爭力。特別是對於重視子女教育與生活品質的家庭,這裡能提供非常優質的成長環境。
然而,購買此屋需考量兩個關鍵因素:首先,4 樓的樓層對於一棟 35 層的超高层建筑來說偏低,可能無法充分享受到「雙景」優勢,且採光與通風條件需現場仔細評估;其次,總價接近兩千兩百萬的預算較高,若未來有置換需求,大坪數住宅在流動性上可能不如標準三房來得靈活。若您不介意樓層條件,且重視現房的居住體驗與區域增值潛力,這是一棟值得深入看屋的物件。
問與答
東橋建案
東橋建案
幸福空間不動產有限公司(仲介,收取服務費)
暱稱:幸福空間不動產有限公司
專業品質:
服務態度:
房仲電話:0968-588221
訂閱:2 (加入)台慶台南永續幸福 加盟店
經紀業名稱: 幸福空間不動產有限公司
證號: (108)登字第356105號
專業租屋管理/專業不動產
不動產買賣/租賃
土地買賣/租賃
預售屋買賣
安南區/九份子建案
永康區/東橋建案
室內電話:06-3588926
預約看屋
發問
收藏房屋土地
分享














我家粉絲團