賣家資訊
台中太平買房 台中東區買房
富屋不動產(仲介,收取服務費)
暱稱:富屋不動產
專業品質:
服務態度:
房仲電話:0422-113993
讚:0 (加入)台中東區樂業 加盟店
經紀業名稱: 富屋不動產經紀有限公司
證號: 103年中市經紀字號01371號
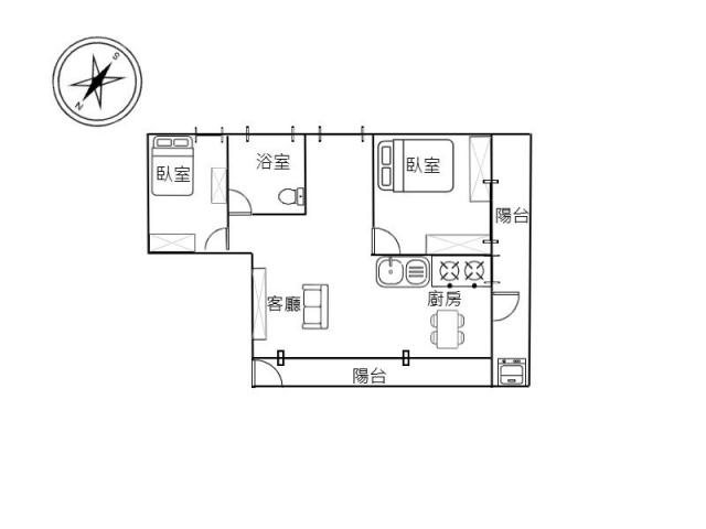
台中太平買房 台中東區買房 富屋不動產 0422113993
北屯十期樓店附平車|佳泰新麗馳|六米九大面寬
台中市 北屯區
近一中商圈|精武太原車站|三井|四房兩衛三車
台中市 北 區
北屯安順園邸近崇德捷運站大三房平車
台中市 北屯區
高投報~塗城商圈.知名品牌店面+17套房
台中市 大里區
⚠️低於實登⚠️北屯中國醫BOT案精緻三房平車
台中市 北屯區
土地會說話|低調中的大價值|住辦廠自由切換
台中市 大里區
太平乙工邊間雙向活路8米大面寬一樓挑高大空間廠房台中太平買房
台中市 太平區
北屯超值2房|低總價裝潢戶|輕鬆入住市區好宅
台中市 北屯區
大里7米面寬三照廠房|住辦合一|大車好進出
台中市 大里區
北屯稀有大面寬大地坪角間孝親透天
台中市 北屯區

預約看屋
發問
收藏房屋土地
分享















預約看屋
















我家粉絲團