苗栗透天 華廈
苗栗買屋 /
苗栗買房
-
苗栗房屋買賣 巷弄慢時光老宅
預約看屋
更多優質好屋: 105
※ 房屋照片僅反應使用現況,用途以實際合法文件為準。若法定用途與現況不同,可能違法並有相關風險,請購屋或承租前詳加確認,以保障權益。
- 總價:688 萬
- 參考單價:14.58 萬/坪
- 地址:
苗栗縣
苗栗市
至公路
地圖
🏷️ 查看區域實價登錄
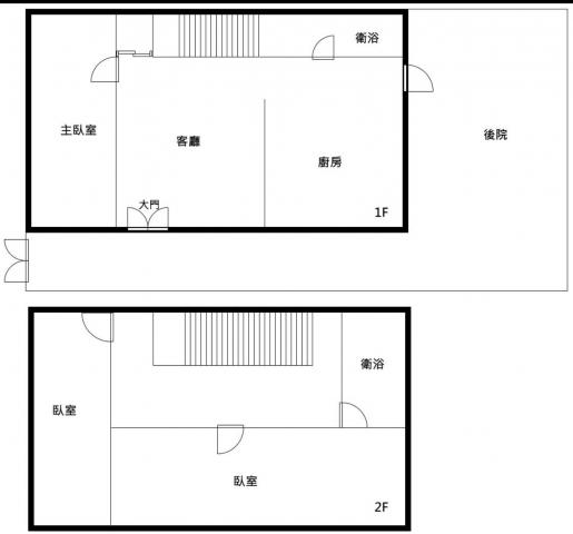
- 格局: 3房(室) 2廳 2衛
- 總坪數:47.18 坪 (不含車位面積)
- 主建物面積:36.6 坪
- 附屬建物面積:10.58 坪
- 土地面積:57.15 坪
- 樓別/樓高: 整棟 / 2樓
- 屋齡:48 年
- 法定用途:住家用
- 形式/類型:住宅/ 透天厝
- 車位:其它
- 車位描述:門前停車
影音專區
房市行情分析
本圖表依實價登錄資料整理,提供市場行情參考;實際價格仍會因屋況、條件不同而有所差異,建議洽詢承辦營業員進一步了解。
詳細資訊
特色說明
圖片介紹















地圖 (點擊顯示地圖)
專家亮點
本內容由 AI 輔助分析整理,僅供參考,實際情況仍建議依此房仲說明與個人需求判斷。
綜合評估,此物件對於「預算有限但重視空間與地段」的購屋者而言,是一個值得考慮的選擇。主要理由是位於苗栗市核心生活圈,擁有難得的大坪數與後院空間,且單價親民,非常適合有孝親需求或計劃自行翻修以追求生活質感的家庭。
然而,建議您在決定前務必優先處理以下兩點:第一,聘請專業驗屋師確認結構安全與管線狀況,預留足夠的翻新預算;第二,向銀行諮詢針對高屋齡房屋的貸款方案,確認資金規劃無虞後再行簽約。若您偏好新大樓、不願意打理老房子修繕,或對停車有硬性需求,則此物件可能不是最佳匹配。
問與答
苗栗房屋買賣
苗栗房屋買賣
邱名秀 邱棠(仲介,收取服務費)
暱稱:邱名秀 邱棠 名秀
專業品質:
服務態度:
房仲電話:0988-395882
訂閱:2 (加入)住商不動産 苗栗縣府 加盟店
經紀業名稱: 弘揚不動產有限公司
證號: (104)登字第297136號
苗栗房屋買賣 名秀 邱棠 0988-395882
用誠懇的心,成就您買賣大小事 !
買屋,賣屋,租賃!
~ 幸福成家找名秀.邱棠 ~
預約看屋
發問
收藏房屋土地
分享















我家粉絲團