北港透天 朝天宮商圈
北港買屋 /
北港買房
-
北港房仲推薦 北港益安路整新透天
詳細資訊
特色說明
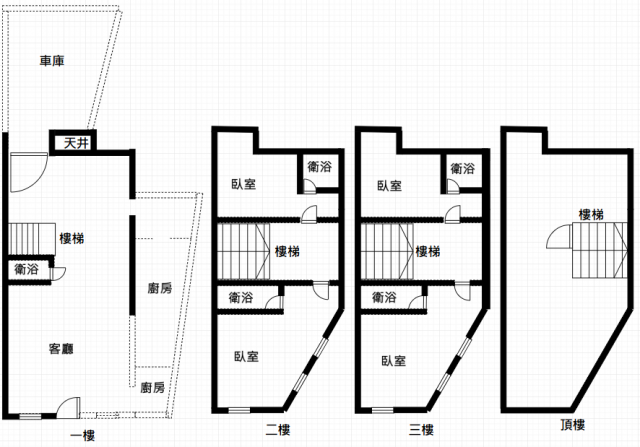
圖片介紹








地圖 (點擊顯示地圖)
我家AI分析|物件診斷一次看
本內容由AI輔助分析整理,僅供參考,實際情況仍建議依此房仲說明與個人需求判斷。
1. SWOT 分析
| 面向 | 內容 |
|---|---|
| 優勢 | 格局優異,適合大家庭: 擁有 4 房 5 衛的寬敞配置,隱私性高,能滿足多代同堂或家庭成員眾多的居住需求。 交通便利,生活機能強: 位於北港鎮核心區域,距朝天宮僅約 200 公尺,周邊市集、學校與公園便利,日常採買與通勤方便。 省時省力,拎包入住: 屋內已重新整理並配備基本家具與空調,無需耗費額外時間與成本裝潢,可立即入住。 |
| 劣勢 | 屋齡較高,潛在維護成本: 屋齡達 49 年,雖經整新,但建築本體結構、管線老化等隱憂仍需納入考量,未來可能產生較大維修費用。 未含車位: 坪數不含車位,且總價未包含停車空間,對於有兩輛以上車輛或需臨時停車的家庭來說較不便。 單價相對偏高: 每坪約 25.43 萬元的單價,在同等屋齡的透天市場中屬於中高水準,需斟酌性價比。 |
| 機會 | 文化觀光潛力: 鄰近著名宗教景點,若未來考量出租或轉型為民宿(視法規而定),具特定客群吸引力。 稀缺資產價值: 市區內整新且具備大坪數的透天厝供應量有限,此類房源在二手市場中較具特色與轉手流通潛力。 |
| 威脅 | 環境干擾風險: 距離朝天宮極近,逢宗教節慶或旅遊旺季時,可能面臨人潮擁擠、噪音增加等居住品質影響。 市場流動性風險: 北港為非核心都市區,整體房價波動較小,若未來有置換需求,售屋週期可能較長。 法規與稅務變動: 老舊建築可能涉及危老重建或課徵高額房屋稅等政策風險。 |
2. 物件評論
此物件對於尋求市區大坪數且重視生活便利性的多人口家庭而言,具有很高的吸引力。其最大賣點在於「無需裝潢即可入住」以及「4 房 5 衛」的實用格局,能迅速解決大家庭的居住空間需求。然而,購屋者需慎重考慮屋齡已近 50 年的建築本體狀況,建議購前務必請專業技師進行詳細驗屋,以確認管線與結構安全,並預留一筆後續維護預算。此外,雖位處熱鬧區域,但須評估對廟口人潮噪音的承受度。若價格符合您的預期且能接受老屋特性,這是一棟兼具實用與收藏價值的溫馨家園;反之,若您偏好新成屋或高投資性,則需再斟酌單位坪價是否過高。
問與答
北港房仲推薦
北港房仲推薦
吳奕霆(仲介,收取服務費)
暱稱:吳奕霆 瑞瑞
專業品質:
服務態度:
房仲電話:0930-707029
訂閱:4 (加入)大家房屋 北港財神 加盟店
經紀業名稱: 富泰房屋有限公司
證號: (113)登字第467037號
北港房仲推薦
嗨,大家好!我是你們的房仲小撇步專家-奕霆,專注於雲嘉地區的房屋、店面和廠房的買賣租賃!
我堅信,用心誠實是最好的服務,這也是我獲得113年下半年度最佳新秀獎的原因之一哦!無論是談判的過程還是選屋的細節,我都能以專業、安全的方式,讓你無後顧之憂!
我熱情如火,幽默風趣,總是讓繁瑣的買屋過程變得輕鬆愉快。因為,我深知買住屋是人生大事,細心聆聽每位客戶的需求,提供具同理心的建議!不論是你的理想家園,還是創業的理想店面,讓我來幫你輕鬆找到最合適的選擇!
準備好要開始這段買屋之旅了嗎?快來私訊我,我們一起把理想變成現實!期待與你聯繫!
電話:0930707029?✨
預約看屋
發問
收藏房屋土地
分享








預約看屋

我家粉絲團