前鎮買屋 /
前鎮買房
-
前鎮民權全翻新歐式3房含平車大樓
預約看屋
更多優質好屋: 133
※ 房屋照片僅反應使用現況,用途以實際合法文件為準。若法定用途與現況不同,可能違法並有相關風險,請購屋或承租前詳加確認,以保障權益。
影音專區
詳細資訊
特色說明
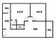
圖片介紹


















地圖 (點擊顯示地圖)
問與答
楠梓公寓大樓
楠梓公寓大樓
黎美田(仲介,收取服務費)
暱稱:黎美田
專業品質:
服務態度:
房仲電話:0988-593313
讚:25 (加入)惠双房屋 海科大 加盟店
經紀業名稱: 美庄宏房屋有限公司
證號: (95)登字第064665號
楠梓公寓大樓,黎美田,0988-593313
大家好,我是一個經驗豐富的房地產經紀人,擁有16年的專業經驗。在這段探索房市的旅程中,我培養出了幾項重要的特質,包括誠實、負責、細心和專業。
誠實是我在工作中非常重視的價值觀,我相信只有用真誠和誠實的態度對待客戶,才能建立起長久的信任關係。無論是買方還是賣方,我都會在交易過程中給予真正可靠的意見和建議,以確保客戶的利益最大化。
作為一個負責任的經紀人,我總是全心全意地為客戶服務。我明白,買賣房屋對於每個人來說都是一個重要的決定,因此我會盡一切努力確保交易過程順利,並提供最佳的解決方案。
細心是我處理每一筆交易的特點之一。我會花時間仔細研究每個屬性的細節,並提供準確的資訊給客戶,以幫助他們做出明智的決策。我會確保所有文件和細節都經過仔細檢查,以避免任何不必要的麻煩。
在我專業的領域中,我有幸獲得了一些獎項和肯定。這些獎項代表了我的專業能力和對客戶服務的承諾。這些肯定使我更有信心地繼續提供高品質的服務。
我在地產界的專業領域是深耕16年的老品牌及其160家加盟店。我對託租和託售都非常熟悉,並且擅長處理楠梓公寓大樓等社區或區域的房地產交易。我對這些地區的市場動態非常了解,可以提供客戶最準確的市場訊息和有價值的建議。
最後,如果您對尋找或出售房地產有任何需求,請隨時與我聯繫。我承諾以專業自信的態度為您提供最優質的服務,以實現您的房地產目標。謝謝您花時間閱讀我的自我介紹,期待能與您交流!
室內電話:(07)3633003
預約看屋
發問
收藏房屋土地
分享



















我家粉絲團