詳細資訊
特色說明
圖片介紹













地圖 (點擊顯示地圖)
我家AI分析|物件診斷一次看
本內容由AI輔助分析整理,僅供參考,實際情況仍建議依此房仲說明與個人需求判斷。
SWOT 分析
| 面向 | 內容 |
|---|---|
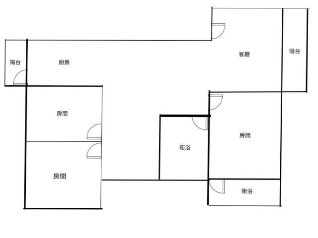
| 優勢 (Strengths) | 1. 房齡新:屋齡僅 1 年,居住環境較新,減少未來維護與修繕的困擾。 2. 格局實用:38 坪規劃為 4 房 2 廳 2 衛,對於家庭成員較多的購屋者而言,空間利用率高。 3. 工法特色:乾式工法搭配不銹鋼構件,強調抗濕度與溫控,適合基隆氣候。 4. 生活機能:鄰近中正路、勝利傳統市場及正濱國中,日常採買與通學便利。 |
| 劣勢 (Weaknesses) | 1. 樓層偏低:2 樓屬於低樓層,可能面臨隱私性較差、採光受限及噪音干擾等問題。 2. 單價偏高:參考單價約 53 萬/坪,在新成屋中雖屬正常,但相較於基隆其他區域稍高。 3. 車位另購:車位未包含在總價內,需額外花費資金購買,整體預算門檻提升。 4. 管理費負擔:月繳約 4500 元的管理費對於一般家庭而言是一筆固定支出。 |
| 機會 (Opportunities) | 1. 新屋升遷:新社區在交屋初期通常較能保值,具備一定的增值空間。 2. 家庭改善:對於需要多房間的二胎或三代同堂家庭,此房型是市區居住的優質選擇。 3. 地段穩定:中正區為基隆市核心區域,生活機能成熟,不易受外圍開發波動影響。 |
| 威脅 (Threats) | 1. 交通噪音:鄰近中正路主幹道,低樓層可能長期受車流噪音與尾氣影響。 2. 市場流動性:基隆房產整體交易速度較慢,未來轉手時可能需要較長的時間。 3. 價格調整:若周邊新案持續推案,可能對本屋價造成競爭壓力。 |
物件評論
此物件對於尋求基隆市區、新成屋且需要大房型的家庭而言,是一個具備吸引力的選擇,但建議您需考量個人對樓層的接受度。
主要理由如下:
- 空間配置合理:在有限的坪數內做到 4 房,非常適合多人口家庭改善居住需求。
- 氣候優勢明顯:強調抗濕度的工法,對於基隆長年潮濕的天氣是實用的功能,能提升居住舒適度。
- 風險點需評估:2 樓屬於低樓層,若您對隱私或噪音敏感,這可能是主要的減分项;此外,總價雖在合理範圍,但加上另購車位的費用後,整體預算是否超支,建議再行精算。
綜合而言,若您的預算充足且不在意低樓層的採光與隱私問題,此物件值得購買以享受新屋居住體驗;反之,若您偏好中高樓層或對噪音敏感,則建議多比較其他社區房源。
問與答
基隆房仲緯蓁
基隆房仲緯蓁
林緯蓁(仲介,收取服務費)
暱稱:林緯蓁
專業品質:
服務態度:
房仲電話:0989-394553
訂閱:0 (加入)基隆廟口 加盟店
經紀業名稱: 聯弘不動產仲介經紀有限公司
證號: (110)登字第402014號
基隆房仲緯蓁 林緯蓁 0989394553
預約看屋
發問
收藏房屋土地
分享













預約看屋

我家粉絲團