*晴晴*店面,高投報
桃園買屋 /
桃園買房
-
中壢捷運重劃 *晴晴*桃園市博愛路收租金店面
預約看屋
更多優質好屋: 35
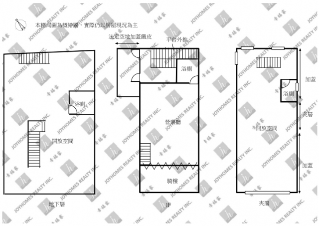
※ 房屋照片僅反應使用現況,用途以實際合法文件為準。若法定用途與現況不同,可能違法並有相關風險,請購屋或承租前詳加確認,以保障權益。
- 總價:2580 萬
- 參考單價:26.66 萬/坪
- 地址:
桃園市
桃園區
博愛路
地圖
🏷️ 查看區域實價登錄
- 社區:貴族大樓
- 總坪數:96.77 坪 (不含車位面積)
- 主建物面積:86.63 坪
- 附屬建物面積:5.17 坪
- 共同使用:4.97 坪
- 樓別/樓高: 1樓 / 8樓
- 屋齡:37 年
- 法定用途:店鋪
- 形式/類型:商用/ 電梯大樓
- 電梯:有
詳細資訊
圖片介紹





地圖 (點擊顯示地圖)
我家AI分析|物件診斷一次看
本內容由AI輔助分析整理,僅供參考,實際情況仍建議依此房仲說明與個人需求判斷。
物件 SWOT 分析
| 面向 | 內容 |
|---|---|
| 優勢 | 1. 地段動線佳: 位於桃園區博愛路,屬於主要幹道,人車流量大,有助於商業曝光。 2. 坪效空間足: 總樓地板近 97 坪,且規劃為三廳三房衛,格局方正,可彈性使用。 3. 單價具吸引力: 參考單價約 26.66 萬/坪,相較於桃園區其他黃金地段的店面,價格相對友善。 4. 樓層優勢: 一樓配置電梯大樓,方便顧客與貨物進出,無障礙動線完善。 |
| 劣勢 | 1. 屋齡偏高: 37 年屋齡已屬老建物,可能涉及管線老化問題,後續維護或整修成本需列入考量。 2. 缺乏車位: 總坪數未包含車位,對於需要停車空間的餐飲或服務業來說是明顯短版。 3. 貸款限制: 商用不動產的首付比例通常較高,且貸息與年限可能不如住宅寬鬆。 |
| 機會 | 1. 租金收益: 標題提及「收租金」,若當前租約穩定且租金回報率可觀,具被動收入潛力。 2. 區域發展: 鄰近中壢捷運重劃區,隨周邊建設成熟,長期看漲機率存在。 3. 改造空間: 屋內空間大,若能投入裝潢打造特色店型,有助於提升單價與租金競爭力。 |
| 威脅 | 1. 電商衝擊: 實體店面在數位化趨勢下面臨挑戰,營業額可能不如過往穩定。 2. 資產流動性: 高額总价(2580 萬)的老物店面,未來出售時的流通性通常低於住宅。 3. 建物老化風險: 高齡老屋可能面臨更新緩慢問題,若鄰區新大樓興起,本物業吸引力可能相對下降。 |
物件評論
購買建議:適合長期投資配置者,但不適合追求短期轉手或自住創業的新手。
此物件位於桃園核心地段的博愛路,擁有良好的昭示性與交通便利性,且單坪價格在商業地產中仍具一定的性價比。然而,37 年的屋齡是最大的變數,除了可能影響貸款成數外,未來的修繕維護也是一筆隱形成本。
若您打算購入作為長期收租用途,且能接受老建物帶來的潛在風險(如租金波動、轉手難度),這是一筆值得深入評估的資產;但若您是為了創業自用或期望短期增值後賣出,則建議謹慎觀望,優先考慮屋齡較新的標的以降低營運與流動性風險。
問與答
中壢捷運重劃
中壢捷運重劃
歐陽晴(仲介,收取服務費)
暱稱:歐陽晴
專業品質:
服務態度:
房仲電話:0989-002001
訂閱:0 (加入)中壢分店 直營店
經紀業名稱: 幸福家地產股份有限公司
證號: (111)登字第412082號
中壢捷運重劃 歐陽晴 0989002001
嗨!大家好,我是你的房產小夥伴!身為一名誠實、負責的房仲,我將以最專業的態度幫你找到夢想中的家!我的細心讓每一個細節都不會被忽略,無論是物件的選擇還是合約的條款,我都仔細把關,讓你放心!
我熱愛這份工作,帶著幽默感與客戶們交流,是我最大的樂趣。不過,當遇到挑戰時,我的堅持與毅力會讓我沉穩地面對每一個困難。對不同客戶的需求,我也總是保持著同理心,希望能聽到你心底真正想要的。
我有豐富的經驗,尤其有談判的技巧,讓我對當地市場更是深耕。很高興能與你分享我的知識和經驗!
如果你正在尋找夢想中的家或是想要了解更多房產資訊,隨時找我!我們可以一起探索屬於你的新天地!
中壢捷運重劃 *晴晴*獨家SOGO4房低公設 中壢海華特區
桃園市 中壢區
*晴晴*新竹鹿鳴農牧用地 有水有電臨路 可申請資材室微型屋
新竹縣 新埔鎮
*晴晴*新竹鹿鳴海拔230公尺農牧有水電臨路可申請資材微型屋
新竹縣 新埔鎮
中壢捷運重劃 *晴晴*冠世界景觀高樓層三房車
桃園市 中壢區
中壢捷運重劃 *晴晴*Sogo海華16年3房2衛大車位
桃園市 中壢區
中壢捷運重劃 *晴晴*百老匯大4房 SOGO商圈 海華商圈 低單價
桃園市 中壢區
中壢捷運重劃 *晴晴*A21捷運帝王厝
桃園市 中壢區
中壢捷運重劃 *晴晴*健行科大智能宅大三房
桃園市 中壢區
中壢捷運重劃 *晴晴*中壢高中大坪數雙車豪宅
桃園市 中壢區
中壢捷運重劃 *晴晴*SOGO三房華廈 海華特區
桃園市 中壢區
預約看屋
發問
收藏房屋土地
分享





我家粉絲團