頭份早市大樓
頭份買屋 /
頭份買房
-
頭份房屋土地 市心精華區 大方 裝潢三房平車美廈
預約看屋
更多優質好屋: 34
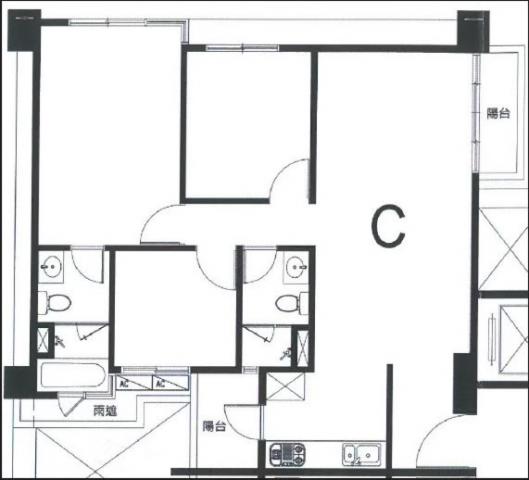
※ 房屋照片僅反應使用現況,用途以實際合法文件為準。若法定用途與現況不同,可能違法並有相關風險,請購屋或承租前詳加確認,以保障權益。
詳細資訊
特色說明
圖片介紹

















地圖 (點擊顯示地圖)
問與答
賣家資訊
頭份房屋土地
邱秀珠(仲介,收取服務費)
暱稱:邱秀珠
專業品質:
服務態度:
房仲電話:0933-516345
讚:2 (加入)頭份建國信東 加盟店
經紀業名稱: 令和不動產經紀有限公司
證號: (109)登字第號378401號
您好!我是您身邊的房仲專家,很高興能和您分享我的故事。我的個性特質包括誠實、負責和細心,這些價值讓我在房地產領域中始終堅持專業,投入熱情地為每一位客戶服務。我贏得了113年第三季竹苗區的績優人員榮譽,這是對我努力的肯定。
我專注於頭份房屋土地的市場,熟悉這裡的每條街巷,總是以謹慎的態度分析每一筆交易。
我的幽默感能讓我們的交流更加輕鬆,而我對客戶的同理心讓我能夠理解您最深的需求。
無論是買房、賣房還是投資,我都會全力以赴,陪伴您走過每一步。
如果您正在尋找一位值得信賴的房仲,或者對房地產有任何疑問,隨時與我聯繫!
讓我們一起找到您心目中理想的家。期待您的來訊!
頭份房屋土地頭份興隆大地坪前庭後院獨棟花園美墅
苗栗縣 頭份市
頭份房屋土地近尚順 大全聯 昌隆優雅三房平車美廈
苗栗縣 頭份市
頭份房屋土地建國呈祥平車三房美廈
苗栗縣 頭份市
頭份房屋土地 建國文化商圈[ 築尚9]全新3房平車美廈
苗栗縣 頭份市
頭份房屋土地專任中央商圈多功能運動場預定地旁住店
苗栗縣 頭份市
頭份房屋土地 建國學區 學校旁3房加車位美居
苗栗縣 頭份市
頭份房屋土地專任建國明星學區近交流道忠孝溫馨美廈
苗栗縣 頭份市
頭份房屋土地 竹南光復路照南學區次頂樓視野平車3房
苗栗縣 竹南鎮
頭份房屋土地苗栗南庄大南埔清悠美麗油杉農牧用地
苗栗縣 南庄鄉
頭份房屋土地 頭份市場旁市中心車位大套房
苗栗縣 頭份市
預約看屋
發問
收藏房屋土地
分享


















我家粉絲團