秋紅谷 新光三越 老
西屯買屋 /
西屯買房
-
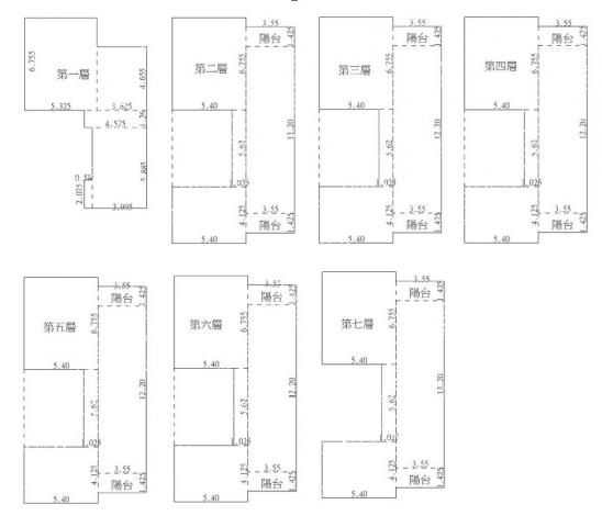
台中北屯找房 正七期核心地段 面公園 售整棟七層 7年大樓
詳細資訊
朝向方位:坐西南朝東北
鄰近學校:市立黎明國小 市立黎明國中 惠文高中
鄰近公園:惠安公園 秋紅谷 潮洋環保公園
生活機能:新西屯市場 櫻花黃昏市場
附近交通:朝馬轉運站公車站 朝馬統聯 朝馬國光 74號快道
面臨路寬:10米
物件資訊內容以登記簿謄本或預售屋買賣契約為準,若有疑問請洽承辦人員。
特色說明
圖片介紹























地圖 (點擊顯示地圖)
問與答
賣家資訊
台中北屯找房
孫凱智(仲介,收取服務費)
暱稱:孫凱智 十三哥
專業品質:
服務態度:
房仲電話:0923-256457
讚:3 (加入)十四期松竹敦化 加盟店
經紀業名稱: 萌芽地產有限公司
證號: (100)登字第179682號
你好!我是孫凱智(十三哥),很高興能有這個機會向您介紹我自己。從1995年進入房仲業以來,我累積了超過十年的寶貴經驗,成功成交數百件房產。我的專業領域涵蓋大樓、華廈、土地、透天、店面及別墅,致力於為每位客戶找到最合適的房屋。
在過去的幾年中,我的努力獲得了多項殊榮,像是103年業績近800萬、單月百萬經紀人以及110年個成交30件、業績近700萬等,這些獎項不僅是對我工作的肯定,更是我持續努力的動力。
我始終秉持誠實、負責及專業的態度,並結合熱情與同理心來理解客戶的需求。您在買賣房屋的過程中遇到任何困難,我都會以穩重和謹慎的方式為您提供最佳的解決方案。
如果您有房產相關的需求,請別猶豫,隨時聯繫我!我的聯絡電話是0923256457,Line ID是0958256457。期待能夠為您提供最優質的服務,讓我們一起實現您的房屋夢想!
台中北屯找房 八期電梯透店 大坪數 機能捷運宅 自住開店首選
台中市 南屯區
台中北屯找房 中興嶺 飛花落院 明月居 15米面寬建地
台中市 新社區
台中北屯找房 佛羅里達 大2房休旅車 降售1150萬 機會點
台中市 北屯區
台中北屯找房 14期洲際漢神百貨 58米大面寬 商五土地
台中市 北屯區
台中北屯找房 水湳經貿 敦化公園 7米大面寬併排雙車臨路別墅
台中市 北屯區
台中北屯找房 正14期 巨蛋 洲際漢神 16米5面寬 建地
台中市 北屯區
台中北屯找房 中社花市 甲建+農地 86米面寬 12米路角地
台中市 后里區
台中北屯找房 七期秋紅谷 樂活城市1+1房 稀有釋出 機會點
台中市 西屯區
台中北屯找房 潭子火車站 稀有大面寬住1-2建地 建商最愛
台中市 潭子區
台中北屯找房 沙鹿富宇禾悦 全區最便宜 投資價2房平車面樹梢
台中市 沙鹿區

預約看屋
發問
收藏房屋土地
分享























預約看屋

我家粉絲團