詳細資訊
朝向方位:坐東南朝西北
鄰近學校:登發國小、大灣國中
鄰近公園:仁愛公園
生活機能:登發黃昏市場、全聯
面臨路寬:9米
物件資訊內容以登記簿謄本或預售屋買賣契約為準,若有疑問請洽承辦人員。
特色說明
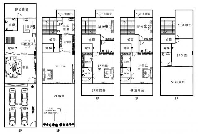
圖片介紹



















地圖 (點擊顯示地圖)
問與答
賣家資訊
高雄買好宅
歐陽蓁妮(仲介,收取服務費)
暱稱:歐陽蓁妮
專業品質:
服務態度:
房仲電話:0976-782013
讚:2 (加入)東四高美 加盟店
經紀業名稱: 永盛資產開發股份有限公司
證號: (109)登字第378245號
蓁妮專注於高屏地區的不動產領域,擁有多年實務經驗,服務範圍涵蓋不動產買賣、稅務諮詢與不動產估價,致力於為客戶提供最安心、專業與高效的一站式服務。
無論是首購族、小家庭,還是資產配置型投資人,蓁妮都能從客戶角度出發,量身打造合適的交易策略與節稅方案。蓁妮熟稔地方市場動態與政府稅務規範,協助客戶在交易前做好資金規劃、了解稅負結構,確保每一筆買賣都兼具效率與保障。
在不動產估價方面,蓁妮具備細膩的市場分析能力,能快速掌握區域行情、產品特性與潛在價值,協助客戶精準判斷價格、降低交易風險,是客戶在購屋與出售過程中的可靠後盾。
想在高雄、屏東置產或出售不動產?需要瞭解買賣過程中稅務與估價的眉角?
找蓁妮,讓您的不動產交易更穩當、更聰明、更有保障。
高雄買好宅 歐陽蓁妮 0976782013
高雄買好宅 前鎮草衙道5樓陽台進出美寓
高雄市 前鎮區
高雄買好宅 光華夜市商圈中正高工陽台進出四樓翻新明亮公寓
高雄市 前鎮區
高雄買好宅 中央公園捷運|明星學區|4房明亮華廈|稀有釋出
高雄市 前金區
高雄買好宅 面美術館公園第一排|內惟商圈大空間透天
高雄市 鼓山區
高雄買好宅 仁雄登發八卦商圈臨12米路大地坪五套房雙車墅
高雄市 仁武區
高雄買好宅 岡山87期前峰國中全棟翻新漂亮透天
高雄市 岡山區
高雄買好宅 獨家# 東港繁華中心~高樓層景觀三房
屏東縣 東港鎮
高雄買好宅 獨家⭐美術館【擁樂】面樹海大4房B1雙平車
高雄市 鼓山區
高雄買好宅 專約-安南區安順、怡安商圈稀有釋出靜巷優質透天
台南市 安南區
高雄買好宅 太普美術海|邊間山海景觀現代輕奢裝潢三房+雙平車
高雄市 左營區
預約看屋
發問
收藏房屋土地
分享



















預約看屋

我家粉絲團