新營別墅,新營透天,
新營買屋 /
新營買房
-
E勝境五匯.車庫宅邸新概念 台南新營土地
預約看屋
更多優質好屋: 143
※ 房屋照片僅反應使用現況,用途以實際合法文件為準。若法定用途與現況不同,可能違法並有相關風險,請購屋或承租前詳加確認,以保障權益。
- 總價:
1870 萬
1795 萬 - 參考單價:31.38 萬/坪
- 地址:
台南市
新營區
太子路
地圖
🏷️ 查看區域實價登錄
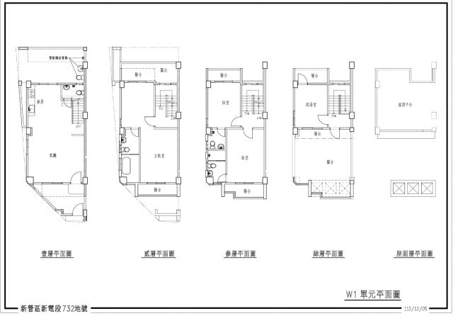
- 格局: 4房(室) 2廳 4衛
- 總坪數:57.21 坪 (不含車位面積)
- 土地面積:24.37 坪
- 樓別/樓高: 整棟 / 4樓
- 屋齡:2 年
- 法定用途:住家用
- 形式/類型:住宅/ 別墅
- 車位:獨立車庫
詳細資訊
特色說明
圖片介紹










地圖 (點擊顯示地圖)
我家AI分析|物件診斷一次看
本內容由AI輔助分析整理,僅供參考,實際情況仍建議依此房仲說明與個人需求判斷。
1. SWOT 分析
| 面向 | 內容 |
|---|---|
| 優勢 | 屋況新且結構安全:屋齡僅 2 年,減少了初期維修成本;採用筏式基礎,具備良好抗震及防土壤液化功能,居住安心。 格局 spacious 且私密性高:擁有整棟 4 樓大坪數(57.21 坪),配置 4 房 4 衛,適合三代同堂;獨立車庫與靜巷環境提供較高隱私性。 空間運用彈性:格局方正採光佳,且建議可透過設計師規劃個人風格,滿足對於居住美學的客製化需求。 |
| 劣勢 | 樓層垂直移動不便:整棟 4 樓設計若未配備電梯,對長輩日常活動或搬運重物可能造成負擔。 總價門檻較高:單價與總價在新營區屬高標物件,可能壓縮未來的潛在買家群體,影響持房成本與周轉靈活性。 地理位置發展性:位於新營區太子路,相較於台南市核心區域(如南科周邊),房價上漲動能可能較慢。 |
| 機會 | 學區優勢可增值:鄰近南梓實驗小學、南新國小等學校,對於重視教育的家庭來說,具備良好的轉手流動性。 客製化空間潛力:目前僅留乾淨本質,買方若能善加利用設計規劃,可大幅提升個人使用價值與舒適度。 居住趨勢迎合:疫情後人們對獨立宅邸、低密度環境的偏好提升,靜巷美宅符合改善型置換需求。 |
| 威脅 | 市場流動性風險:高總價住宅在房地產市場波動時,去化速度通常較慢,可能需要較長時間出售。 持有成本增加:大坪數與整棟管理意味較高的維護費用(如外牆清潔、水電設施更新)。 區域發展緩慢:若周邊商業或交通建設未能跟上,房屋增值空間可能受限。 |
2. 物件評論
此物件適合追求「寬敞居住品質」與「靜謐生活環境」的改善型家庭購買。
主要理由如下:
- 居住機能完善且安心:屋齡新、結構安全(筏基),且房衛配置充足(4 房 4 衛),能滿足多人口家庭的隱私與生活需求。
- 學區與環境優勢:鄰近國中小學校,適合有子女教育規劃的家庭;靜巷與獨立車庫設計也提供了難得的安寧居住體驗。
然而,由於總價較高且樓層為 4 樓無電梯,建議買家需考量未來長輩是否同住以及自身對垂直交通的接受度。若您打算長期自住並重視空間設計的靈活性,此物件值得考慮;若以短期投資或快速轉手為目標,則需審慎評估新營區的市場流通速度。
問與答
台南新營土地
台南新營土地
專業服務小天使(仲介,收取服務費)
暱稱:服務人員
專業品質:
服務態度:
房仲電話:0965-108271
訂閱:1 (加入)台慶台南新營三民 加盟店
經紀業名稱: 富賓不動產有限公司
證號: (109)登字第370495號
台南新營土地 台慶新營三民店 服務專線:066336818
無論你的不動產在台南、嘉義、高雄或是全台
只要您有買賣租賃的需求,都可以讓我們幫您搞定 ♥
室內電話:06336818
地小志氣高|柳營果毅後小金地(持分) 台南新營土地
台南市 柳營區
六腳鄉懷舊透天厝~老闆的起家旺宅 台南新營土地
嘉義縣 六腳鄉
東山聖賢社區建地 台南新營土地
台南市 東山區
(專約)南投集集3230坪農牧用地-投資造林適合 台南新營土地
南投縣 集集鎮
佳里塭子內方正農地 台南新營土地
台南市 佳里區
屏東里港工業地A1 台南新營土地
屏東縣 里港鄉
現代簡約、高質感別墅在新營市中心 台南新營土地
台南市 新營區
柳營未來方塊257 台南新營土地
台南市 柳營區
東山北勢寮建地持分約20坪+未保登老屋 台南新營土地
台南市 東山區
屏東里港工業地A6 台南新營土地
屏東縣 里港鄉
預約看屋
發問
收藏房屋土地
分享










我家粉絲團