岡山本洲工業區
岡山買屋 /
岡山買房
-
岡山RK3捷運宅優質社區雙車別墅 0919151120楊美觀
預約看屋
更多優質好屋: 188
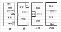
※ 房屋照片僅反應使用現況,用途以實際合法文件為準。若法定用途與現況不同,可能違法並有相關風險,請購屋或承租前詳加確認,以保障權益。
詳細資訊
特色說明
圖片介紹







地圖 (點擊顯示地圖)
問與答
賣家資訊
店面.透天.大樓.廠房.工業地.建地.農地
協理 楊美觀(仲介,收取服務費)
暱稱:南區千萬業績天后
專業品質:
服務態度:
房仲電話:0919-151120
讚:2 (加入)高雄岡山美美 加盟店
經紀業名稱: 美美森鼎辰不動產企業社
證號: (100)登字第173211號
岡山買房首選 楊美觀 0919151120
各位客戶您好!我是您可信賴的房地產專業經紀人,擁有年度千萬業績銷售天后的榮譽。我以誠實、負責和細心為根基,始終以客戶的需求為首要考量。無論是透天、樓房、廠房、建地或農地,我在岡山、橋頭、路竹、楠梓、燕巢、湖內、阿蓮、梓官及彌陀等區域的專業知識,讓我能夠提供最具價值的建議。
我堅持以專業的態度,結合幽默感與同理心,讓每一位客戶在買賣過程中都能感受到輕鬆和愉快。無論遇到什麼挑戰,我都會以毅力與沉穩的心態,謹慎地為您尋找最合適的房產。
如果您正在考慮購買或出售房產,歡迎與我聯繫。我將竭誠為您提供專業的服務,讓您在這趟旅程中充滿信心和安心!期待與您的合作!
工業地. 農地.
湖內學區車墅公園綠地近商圈0919151120楊美觀
高雄市 湖內區
岡山竹圍公園前8套房包租婆最愛 0919151120楊美觀
高雄市 岡山區
橋頭甲圍近家樂福高雄大學透天0919151120 楊美觀
高雄市 橋頭區
高雄路竹低總價需整理活巷邊間透天0919151120楊美觀
高雄市 湖內區
岡山近產業園區,最佳農地+建地0919151120 楊美觀
高雄市 岡山區
臨路竹科學園區正旁邊增值用地0919151120 楊美觀
高雄市 路竹區
近省道灣裡都內多元化優質農地0919151120 楊美觀
高雄市 岡山區
梓官大面寬低總價甲種建地 0919151120楊美觀
高雄市 岡山區
岡山甲區國宅3房+平面車位優質大樓0919151120楊美觀
高雄市 岡山區
路竹近省道路科旁美建地0919151120 楊美觀
高雄市 路竹區
預約看屋
發問
收藏房屋土地
分享








我家粉絲團