新城買屋 /
新城買房
-
新城北埔尊品面寬獨門獨院預售美屋C
預約看屋
更多優質好屋: 41
※ 房屋照片僅反應使用現況,用途以實際合法文件為準。若法定用途與現況不同,可能違法並有相關風險,請購屋或承租前詳加確認,以保障權益。
- 總價:1188 萬
- 參考單價:25.95 萬/坪
- 地址:
花蓮縣
新城鄉
廣安三街
地圖
🏷️ 查看區域實價登錄
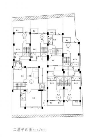
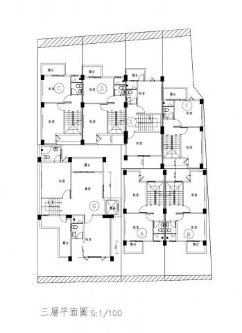
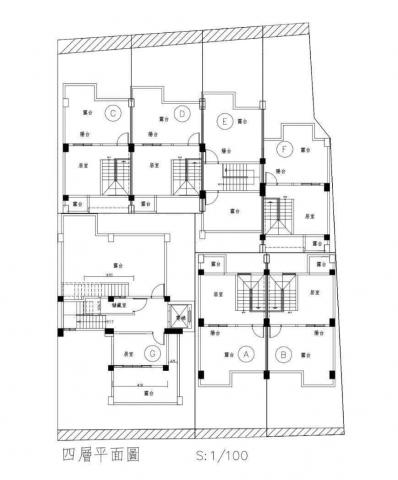
- 格局: 4房(室) 2廳 5衛
- 總坪數:45.78 坪 (不含車位面積)
- 主建物面積:45.78 坪
- 法定用途:住家用
- 形式/類型:住宅/ 別墅
詳細資訊
特色說明
圖片介紹




















地圖 (點擊顯示地圖)
問與答
花蓮房仲陳鳴
花蓮房仲陳鳴
陳鳴(仲介,收取服務費)
暱稱:陳鳴
專業品質:
服務態度:
房仲電話:0911--305578
訂閱:1 (加入)花蓮中正仁里 加盟店
經紀業名稱: 嘉新不動產經紀有限公司
證號: 103登字第275733號
大家好,我是你們的房仲小助手!我的名字是 [花蓮房仲陳鳴],我專注於幫助每一位客戶找到理想的家。在這個過程中,我始終秉持著誠實、負責和細心的態度,讓每位客戶都能放心把大事交給我。
我擁有豐富的專業知識,並且在業界已獲得多項獎項肯定,絕對能提供你們最專業的服務!讓我們能夠快速找到最合適的房源。
在這個尋找家的旅程中,我希望能用我的熱情和幽默讓你們減輕壓力。我相信同理心是建立良好關係的關鍵,並且我會以堅持和毅力陪伴你們,讓這個購屋過程充滿愉快的回憶。
準備好開始你的尋屋之旅了嗎?隨時歡迎聯繫我,讓我們一起找到您夢想中的新家!
預約看屋
發問
收藏房屋土地
分享




















我家粉絲團