北屯別墅
北屯買屋 /
北屯買房
-
北屯買賣房屋 一點利市場旁遼寧邊間孝親車庫別墅
預約看屋
更多優質好屋: 184
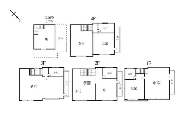
※ 房屋照片僅反應使用現況,用途以實際合法文件為準。若法定用途與現況不同,可能違法並有相關風險,請購屋或承租前詳加確認,以保障權益。
詳細資訊
朝向方位:坐西南朝東北
鄰近學校:市立北新國中
鄰近公園:舊社公園.豐田公園
生活機能: 一點利市場
附近交通:捷運
物件資訊內容以登記簿謄本或預售屋買賣契約為準,若有疑問請洽承辦人員。
特色說明
圖片介紹
















地圖 (點擊顯示地圖)
問與答
賣家資訊
北屯買賣房屋
潘建祺 (仲介,收取服務費)
暱稱:潘建祺
專業品質:
服務態度:
房仲電話:0919-647850
讚:0 (加入)台中北區崇德 加盟店
經紀業名稱: 聯恒不動產經紀有限公司
證號: (107)中市經紀字第01819號
北屯買賣房屋 潘建祺 0919647850
大家好,我是專業房仲,擁有地政士與不動產經紀人雙重證照,並且在永慶屢獲店冠軍殊榮,也在大北台中聯城集團獲得多項優異獎項。我的專業背景包括政府地政專業行政人員經驗,營造工程實務及不動產仲介實務,這使我對不動產市場有深入且全面的理解。
我專注於台中市北區、北屯區、東區、太平、大里、南屯、南區、西區及西屯區,特別了解惠宇建設、豐邑建設、達麗建設及多個著名建設公司。我始終秉持誠實、負責的態度,細心聆聽客戶需求,並以專業熱情的服務,為客戶提供最佳解決方案。我也懂得幽默,讓每次的交流都輕鬆愉快。
如果您正在尋找能信賴的房產專業人士,歡迎隨時聯絡我,我將竭誠為您服務,助您找到理想的家。讓我們一起邁出這重要的一步吧!
室內電話:04-22337000
北屯買賣房屋 專簽東區五套房獨棟角間大面寬地坪四車電梯豪墅
台中市 東 區
北屯買賣房屋 公園I-PARK 三房B1柱邊平車高樓裝潢戶
台中市 太平區
北屯買賣房屋 佑崧千滙|崗石外觀臨路間間套房露台電梯3車墅B
台中市 北屯區
北屯買賣房屋 勤益科大輕齡28電梯套房
台中市 太平區
北屯買賣房屋 專簽中國醫市特區一山豁然臨路裝潢美墅
台中市 北屯區
北屯買買房屋 中醫商圈衛道名廈超大四房附車位
台中市 北 區
北屯買賣房屋 中醫商圈室內61坪/景觀大四房雙車位 北屯買賣房屋
台中市 北 區
北屯買賣房屋 新光田特區百昱麗墅百萬裝潢大面寬豪宅
台中市 龍井區
北屯買賣房屋 文心崇德站通豪高登1+1房附車位
台中市 北屯區
北屯買賣房屋 近廣三SOGO寶璽皇冠4房加休旅車位
台中市 西屯區
預約看屋
發問
收藏房屋土地
分享

















我家粉絲團