凹子底買房
仁武買屋 /
仁武買房
-
住商高雄好市多大順 仁武仁雄收租透店
預約看屋
更多優質好屋: 108
※ 房屋照片僅反應使用現況,用途以實際合法文件為準。若法定用途與現況不同,可能違法並有相關風險,請購屋或承租前詳加確認,以保障權益。
- 總價:
3288 萬
2980 萬 - 參考單價:61.63 萬/坪
- 地址:
高雄市
仁武區
仁雄路
地圖
🏷️ 查看區域實價登錄
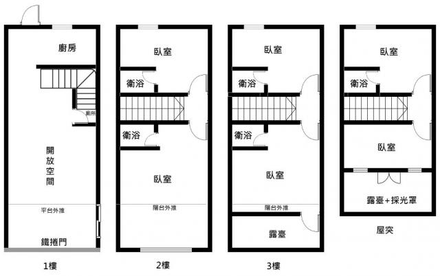
- 總坪數:48.35 坪 (不含車位面積)
- 主建物面積:43.8 坪
- 附屬建物面積:4.55 坪
- 土地面積:22.06 坪
- 樓別/樓高: 整棟 / 3樓
- 屋齡:33 年
- 法定用途:住商用
- 形式/類型:商用/ 透天厝
房市行情分析
本圖表依實價登錄資料整理,提供市場行情參考;實際價格仍會因屋況、條件不同而有所差異,建議洽詢承辦營業員進一步了解。
詳細資訊
特色說明
圖片介紹












地圖 (點擊顯示地圖)
專家亮點
本內容由 AI 輔助分析整理,僅供參考,實際情況仍建議依此房仲說明與個人需求判斷。
這筆標的適合以長期投資收租為主要目的的買方,對於自住型購屋者而言則建議審慎評估。
主要的理由有三點:首先,該物件位於仁雄路主幹道且鄰近學校,具備穩定的潛在租戶來源(如學生、教職員工),配合「6 房 6 衛」的格局與店面配置,現金流潛力是最大亮點;其次,標榜全新整修降低了購屋後的短期維護成本;然而,您必須正視的是屋齡 33 年可能帶來的銀行貸款限制(例如貸款年限縮短或成數降低),以及每坪近 62 萬單價在仁武區的高門檻。建議您在簽約前,務必查核增建部分的合法性與確認銀行實際貸額,以確保投資報酬率能抵銷財務成本。
問與答
凹子底買房
凹子底買房
高雄好市多大順加盟店(仲介,收取服務費)
暱稱:高雄好市多大順加盟店
專業品質:
服務態度:
房仲電話:0908-620448
訂閱:14 (加入)住商不動産 高雄好市多大順 加盟店
經紀業名稱: 鼎信國際開發顧問有限公司
證號: 106年登字第313742號
成交專線:07-5590888
室內電話:07-5590888
住商高雄好市多大順 梓官國中方正建地+企業總部
高雄市 梓官區
住商高雄好市多大順 麟洛豪華農舍-近屏東市及交流道
屏東縣 麟洛鄉
高雄好市多大順店-大寮河堤路甲工鋼構廠房
高雄市 大寮區
住商高雄好市多大順 光華商圈翻新美寓
高雄市 前鎮區
住商高雄好市多大順 勝利國小旁(美3房+平面大車位)
高雄市 鼓山區
住商高雄好市多大順 專台南麻豆大面寬工業地
台南市 麻豆區
住商高雄好市多大順 燕巢大高雄雙拼廠房
高雄市 燕巢區
住商高雄好市多大順 路竹挑高工業廠房~出售
高雄市 路竹區
住商高雄好市多大順 大寮和發工業廠房~三角窗
高雄市 大寮區
住商高雄好市多大順 大寮台88交流道全新農地倉庫廠房(F)
高雄市 大寮區

預約看屋
發問
收藏房屋土地
分享












我家粉絲團