凹子底買房
三民買屋 /
三民買房
-
住商高雄好市多大順 R12後驛站雙透天店面
預約看屋
更多優質好屋: 108
※ 房屋照片僅反應使用現況,用途以實際合法文件為準。若法定用途與現況不同,可能違法並有相關風險,請購屋或承租前詳加確認,以保障權益。
- 總價:5980 萬
- 參考單價:30.31 萬/坪
- 地址:
高雄市
三民區
察哈爾二街
地圖
🏷️ 查看區域實價登錄
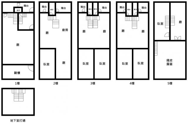
- 總坪數:197.31 坪 (不含車位面積)
- 主建物面積:189.39 坪
- 附屬建物面積:7.92 坪
- 土地面積:48.25 坪
- 樓別/樓高: 整棟 / 5樓
- 屋齡:38 年
- 法定用途:商業用
- 形式/類型:商用/ 店面
房市行情分析
本圖表依實價登錄資料整理,提供市場行情參考;實際價格仍會因屋況、條件不同而有所差異,建議洽詢承辦營業員進一步了解。
詳細資訊
特色說明
圖片介紹















地圖 (點擊顯示地圖)
專家亮點
本內容由 AI 輔助分析整理,僅供參考,實際情況仍建議依此房仲說明與個人需求判斷。
是否值得購買:取決於您的投資目的與資金規劃
這筆交易對於「自用經營」或「長期穩健收租型投資者」而言,具備相當吸引力。主要理由在於其位於後驛成熟商圈且鄰近捷運的優質地段,加上雙透天邊間的高採光與大空間特質,非常適合需要穩定場所的專業機構或診所使用。
然而,若您是以「短期獲利」或「投資保值兼備」為考量,則需格外謹慎。38 年的屋齡是主要扣分項,這可能導致後續維修負擔加重及銀行貸款限制;此外,6,000 萬的總價屬高標案,商用不動產的轉手週期較長,流動性不如住宅。建議您在決定前,務必詳細評估自身對該建築未來的整修預算規劃,以及對於持有稅負與資金成本的承受能力。若能以長期資產角度看待,此物件在高雄三民區仍具相當的配置價值。
問與答
凹子底買房
凹子底買房
高雄好市多大順加盟店(仲介,收取服務費)
暱稱:高雄好市多大順加盟店
專業品質:
服務態度:
房仲電話:0908-620448
訂閱:14 (加入)住商不動産 高雄好市多大順 加盟店
經紀業名稱: 鼎信國際開發顧問有限公司
證號: 106年登字第313742號
成交專線:07-5590888
室內電話:07-5590888
住商高雄好市多大順 火車站邊間黃金透店
高雄市 三民區
高雄好市多大順店-文藻鼎中收租鑽店面
高雄市 三民區
住商高雄好市多大順 鳳山國中(美3房+平車)
高雄市 鳳山區
住商高雄好市多大順 屏東近千坪工業廠房~前後路
屏東縣 屏東市
住商高雄好市多大順 仁武仁雄商圈(三角窗)建地
高雄市 仁武區
住商高雄好市多大順 專-楠梓崑庭馥御全新2+1房平車
高雄市 楠梓區
住商高雄好市多大順 小港機場超值透天
高雄市 小港區
住商高雄好市多大順 阿蓮天車農地廠房出售
高雄市 阿蓮區
住商高雄好市多大順 大寮拷潭美三房
高雄市 大寮區
住商高雄好市多大順 巨蛋高樓四房平車
高雄市 左營區
預約看屋
發問
收藏房屋土地
分享















我家粉絲團