苗栗銅鑼透天
銅鑼買屋 /
銅鑼買房
-
銅鑼全新典藏雙拼2 苗栗房屋買賣
預約看屋
更多優質好屋: 94
※ 房屋照片僅反應使用現況,用途以實際合法文件為準。若法定用途與現況不同,可能違法並有相關風險,請購屋或承租前詳加確認,以保障權益。
- 總價:
2380 萬
2180 萬 - 參考單價:32.94 萬/坪
- 地址:
苗栗縣
銅鑼鄉
文化街
地圖
🏷️ 查看區域實價登錄
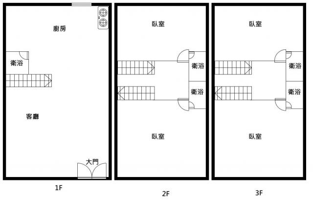
- 格局: 4房(室) 2廳 5衛
- 總坪數:66.19 坪 (不含車位面積)
- 主建物面積:63.27 坪
- 附屬建物面積:2.92 坪
- 土地面積:35.87 坪
- 樓別/樓高: 整棟 / 4樓
- 法定用途:住家用
- 形式/類型:住宅/ 透天厝
- 車位:庭院式
- 車位描述:門前可停兩部車沒問題
影音專區
房市行情分析
本圖表依實價登錄資料整理,提供市場行情參考;實際價格仍會因屋況、條件不同而有所差異,建議洽詢承辦營業員進一步了解。
詳細資訊
特色說明
圖片介紹



















地圖 (點擊顯示地圖)
專家亮點
本內容由 AI 輔助分析整理,僅供參考,實際情況仍建議依此房仲說明與個人需求判斷。
是否值得購買:視居住需求與財務預算而定
此物件適合「以自住為主、長期持有多世代共居」的購屋者。其主要亮點在於交通便利性與全新的居住品質,尤其是對往返台中與苗栗的通勤族而言,火車站 1 分鐘路程是極大加分。此外,4 房 5 衛的配置與後院空間,提供了極高的生活彈性與舒適度。
然而,您需審慎評估總價 2180 萬對家庭財務的負荷,以及鄉鎮地區房屋較慢的流動性。若您主要考量投資增值或頻繁換屋,此物件可能並非首選;但若能接受持有成本並規劃長期自住,這是一個能提升生活品質的優質選項。建議在簽約前,再確認庭院車位的圍籬安全及周邊環境噪音狀況,以降低居住隱憂。
問與答
苗栗房屋買賣
苗栗房屋買賣
邱名秀 邱棠(仲介,收取服務費)
暱稱:邱名秀 邱棠 名秀
專業品質:
服務態度:
房仲電話:0988-395882
訂閱:2 (加入)住商不動産 苗栗縣府 加盟店
經紀業名稱: 弘揚不動產有限公司
證號: (104)登字第297136號
苗栗房屋買賣 名秀 邱棠 0988-395882
用誠懇的心,成就您買賣大小事 !
買屋,賣屋,租賃!
~ 幸福成家找名秀.邱棠 ~

預約看屋
發問
收藏房屋土地
分享



















我家粉絲團