國泰MEGA 台中機
北屯買屋 /
北屯買房
-
(賀成交) 國泰MEGA|3房高樓|無限視野
預約看屋
更多優質好屋: 87
※ 房屋照片僅反應使用現況,用途以實際合法文件為準。若法定用途與現況不同,可能違法並有相關風險,請購屋或承租前詳加確認,以保障權益。
- 總價:2438 萬 (含車位價)
- 參考單價:47.04 萬/坪
- 地址:
台中市
北屯區
南興一路
地圖
🏷️ 查看區域實價登錄
- 社區:國泰MEGA+
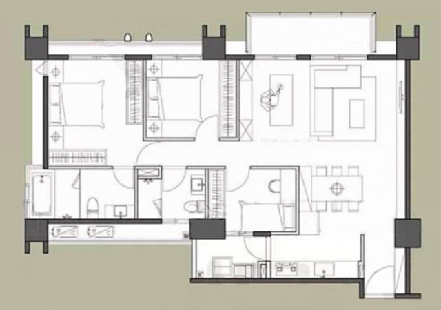
- 格局: 3+1房(室) 2廳 2衛 2陽台 1廚房
- 總坪數:51.83 坪 (包含車位面積)
- 主建物面積:27.21 坪
- 附屬建物面積:3.25 坪
- 共同使用:21.36 坪
- 車位坪數:7.21 坪
- 樓別/樓高: 11樓 / 14樓
- 屋齡:1 年
- 法定用途:住家用
- 形式/類型:住宅/ 電梯大樓
- 車位:坡道平面式
- 車位描述:B1車位
- 電梯:有
房市行情分析
本圖表依實價登錄資料整理,提供市場行情參考;實際價格仍會因屋況、條件不同而有所差異,建議洽詢承辦營業員進一步了解。
詳細資訊
朝向方位:坐南朝北
鄰近學校:東光國小、北新國中
鄰近公園:南興公園
生活機能:全聯、大買家、一點利市場
附近交通:松竹雙鐵共構站
物件資訊內容以登記簿謄本或預售屋買賣契約為準,若有疑問請洽承辦人員。
特色說明
圖片介紹









地圖 (點擊顯示地圖)
專家亮點
本內容由 AI 輔助分析整理,僅供參考,實際情況仍建議依此房仲說明與個人需求判斷。
整體評價:值得列入優先看房名單
此物件對於追求居住品質與通勤便利的家庭而言,是一項高性價比的選擇。主要推薦理由如下:
- 品牌與品質保障:國泰建設的建築品質在市場上有口皆碑,配合 1 年的低屋齡,買家能立即入住且無需擔心房屋老化問題,適合急需安家的族群。
- 地理位置優越:坐落於松竹雙鐵站周邊,交通便利性極高,加上鄰近南興公園與學校用地,生活機能完善且具發展潛力,長期居住體驗會相當不錯。
- 價格競爭力:在同品牌系列案中,本案單價相對較低,對於喜歡國泰社區規劃但預算有限的買家來說,是一個難得的切入點。
建議:雖有高度推薦性,但仍建議您親自實地走訪,確認車位動線是否順暢,並實際感受窗戶的噪音情況。若預算允許且對高樓層視野有偏好,此物件在未來轉手時應也具備不錯的市場吸引力。
問與答
台中機捷建案
台中機捷建案
葉人誠(仲介,收取服務費)
暱稱:百萬經紀人-小葉
專業品質:
服務態度:
房仲電話:0912-401627
訂閱:1 (加入)北屯水岸岩店 加盟店
經紀業名稱: 艾莉創億不動產
證號: (109)登字第375604號
台中機捷建案 葉人誠 0912401627
(賀成交) 東區LaLaPort 2房2衛1車 高樓
台中市 北屯區
(賀成交) 國泰Mega+|4房2車|河岸視野 台中機捷建案
台中市 北屯區
(賀成交) 松築瓚|全新成屋3房,朝南無限視野 台中機捷建案
台中市 北屯區
(售出)登陽城之華|3房平車|高樓邊間|五星級社區 台中機捷建
台中市 北屯區
(售出) 允將上上謙|新光田特區中科領銜|社區我有多間 台中機捷建案
台中市 北屯區
(賀成交) 國泰Mega+|4房平車,河岸視野 台中機捷建案
台中市 北屯區
(賀成交) 天闊單元12|震後透天|地下雙車位 台中機捷建案
台中市 北屯區
(售出) 陞霖太美|全新2房平車|質感樹梢戶 台中機捷建案
台中市 太平區
(售出) 富宇峰景|3房雙車|臨路朝南|近捷運 台中機捷建案
台中市 北屯區
(賀成交) 機捷2房平車 新屋齡 永久棟距 台中機捷建案
台中市 北屯區
預約看屋
發問
收藏房屋土地
分享









我家粉絲團