竹北福興知心大兩房大
竹北買屋 /
竹北買房
-
竹北福興知心大兩房大露臺戶+車位 竹北買賣房屋
預約看屋
更多優質好屋: 151
※ 房屋照片僅反應使用現況,用途以實際合法文件為準。若法定用途與現況不同,可能違法並有相關風險,請購屋或承租前詳加確認,以保障權益。
- 總價:1880 萬 (含車位價)
- 參考單價:67.87 萬/坪
- 地址:
新竹縣
竹北市
福興路
地圖
🏷️ 查看區域實價登錄
- 社區:福興知心
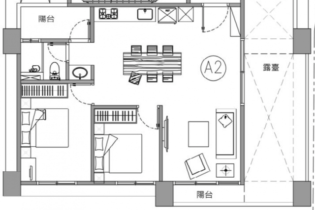
- 格局: 2房(室) 1廳 1衛 2陽台 1廚房
- 總坪數:27.7 坪 (不含車位面積)
- 主建物面積:18.68 坪
- 附屬建物面積:1.98 坪
- 共同使用:5.83 坪
- 其他面積:1.21 坪
- 土地面積:9.57 坪
- 樓別/樓高: 2樓 / 5樓
- 屋齡:0 個月
- 法定用途:住家用
- 形式/類型:住宅/ 電梯大樓
- 車位:昇降機械式
- 電梯:有
詳細資訊
特色說明
圖片介紹






地圖 (點擊顯示地圖)
我家AI分析|物件診斷一次看
本內容由AI輔助分析整理,僅供參考,實際情況仍建議依此房仲說明與個人需求判斷。
竹北福興知心物件分析報告
1. SWOT 分析
| 面向 | 內容 |
|---|---|
| 優勢 (Strengths) | 新成屋優勢:屋齡為 0 個月,代表建築品質佳且無需立即進行裝潢整修。 空間特色突出:擁有罕見的大露臺設計,對於喜歡戶外生活或通風採光需求高的買家而言具高度吸引力。 配套完善:總價包含升降機械式車位,省去額外購置車位的負擔與時間成本。 地段便利性:位於竹北市福興路,鄰近快速道路與公車站點,生活機能圈內超市、市場及公園應有盡有。 |
| 劣勢 (Weaknesses) | 樓層位置較低:位於 5 層樓建築的 2 樓,採光與隱私可能不如中高樓層,且需注意周邊住戶視線與噪音干擾。 單價相對較高:每坪參考單價約 67.87 萬,在竹北新案市場中屬於偏高水平,需評估是否溢價。 衛浴規劃:兩房一廳配置僅有一間衛浴,對於人口較多的家庭可能會在使用尖峰時段造成不便。 車位類型:附屬車位為升降機械式,雖節省空間但取用車位的時間與便利度不如平面車位。 |
| 機會 (Opportunities) | 區域發展潛力:竹北鄰近新竹科學園區,產業發展穩定,有助於長期房價支撐與租金需求。 產品稀缺性:新成屋附帶大露臺的戶型較少見,具獨特市場定位,未來若欲轉手或出租可能吸引特定族群。 保固優勢:零屋齡意味著屋況良好,享有完善的建商保固期,初期居住維修成本較低。 |
| 威脅 (Threats) | 房市波動風險:當前利率環境與經濟情勢可能影響購屋信心,導致房價回調。 低樓層流動性:部分買家偏好中高樓層,2 樓在二手市場上的轉手速度或價格韌性可能不及其他樓層。 機械車位潛在問題:若社區車位使用頻繁,可能遇到停車格被佔用或機器故障需等待的情況。 |
2. 物件評論
此物件對於追求新成屋品質與戶外生活空間的購屋者而言,具有不錯的可入手價值。主要優點在於「總價含車位」且擁有大露臺,在竹北新案市場中具備相當的獨特性和實用性,尤其適合注重居住質感的小型家庭或作為首套房的年輕買家。
然而,建議您需特別考量「低樓層」帶來的隱私與採光影響,以及機械式車位的便利性落差。若您的預算範圍容許此單價,且對 2 樓的視野無過度疑慮,這是一個能夠平衡居住舒適度與生活機能的選擇。在正式簽約前,強烈建議於不同時段(白天與夜晚)實際前往現場勘查,以確認噪音與採光是否符合您的期待。
問與答
竹北買賣房屋
竹北買賣房屋
徐莉蓁(仲介,收取服務費)
暱稱:徐莉蓁
專業品質:
服務態度:
房仲電話:0955-804928
訂閱:3 (加入)有巢氏房屋 加盟店
經紀業名稱: 聯興不動產經紀有限公司
證號: (102)登字第 239316 號
成交專線:0955804928
在地深耕,用心經營,提供每一位需要買屋、賣屋客戶專業的房地產服務。徐莉蓁 期待成為您最信任的房地產專業顧問!
我以誠實、負責、細心、專業、堅持等特質為基準,努力提供最好的服務給予客戶。
我相信,在買賣房屋的過程中,誠實是非常重要的。我會以真誠的態度與客戶溝通,確保他們能夠清楚了解每個步驟,並且做出最明智的選擇。
作為一個房仲從業多年的經驗者,我知道專業知識的重要性。我會不斷學習市場的最新變化,為了給予客戶最正確、最專業的建議。
我的熱情和幽默感也是我在房仲行業受到好評的原因之一。我喜歡用輕鬆的方式來與客戶交流,讓整個過程更加愉快而輕鬆。
同時,我也擁有良好的同理心和毅力。我了解每個人對於房屋的需求都不盡相同,因此我會用心聆聽,並針對不同的需求提供最合適的解決方案。
在得獎資歷方面,我曾榮獲百萬經紀人的獎項,這也是對我專業能力的一種肯定。
我專精於新竹市全區和竹北地區的房屋買賣。在這些地區,我對於社區的了解和相關資訊都非常熟悉,能夠提供客戶最準確的資訊。
最後,如果您有任何關於房屋買賣的需求,請隨時與我聯絡。我將以快速回覆、專業指導的態度,為您提供最優質的服務。非常感謝!
櫻花大櫻國3稀有高樓雙主臥雙平車 竹北買賣房屋
台中市 太平區
低總價近遠百[台大商務]套房 竹北買賣房屋
新竹縣 竹北市
高鐵區[說La vie]優質美3房+雙平車 竹北買賣房屋
新竹縣 竹北市
新竹科技首選-雲智匯商務辦公室 竹北買賣房屋
新竹市 東 區
專任1.88甲-苗栗獅潭景觀農+建 竹北買賣房屋
苗栗縣 獅潭鄉
中壢[資訊天廈]電梯住辦大樓 竹北買賣房屋
桃園市 中壢區
高鐵區[德鑫御璽]次頂樓4房平車 竹北買賣房屋
新竹縣 竹北市
皇凱大樓美裝潢3房平車 竹北買賣房屋
新竹市 北 區
新竹科技首選-雲智匯商務辦公室 竹北買賣房屋
新竹市 東 區
湖口[弘峻理享城]全新邊間3房+B1平車 竹北買賣房屋
新竹縣 湖口鄉
預約看屋
發問
收藏房屋土地
分享






我家粉絲團