南區買屋 /
南區買房
-
正20米路面國光國小朝南綠海透店
預約看屋
更多優質好屋: 189
※ 房屋照片僅反應使用現況,用途以實際合法文件為準。若法定用途與現況不同,可能違法並有相關風險,請購屋或承租前詳加確認,以保障權益。
- 總價:1980 萬 (含車位價)
- 參考單價:35.92 萬/坪
- 地址:
台中市
南區
仁和路
地圖
🏷️ 查看區域實價登錄
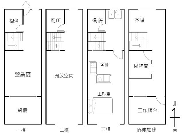
- 格局: 3房(室) 3廳 3衛 4陽台 1廚房
- 總坪數:55.122 坪 (包含車位面積)
- 土地面積:19.965 坪
- 樓別/樓高: 1~3樓 / 3樓
- 法定用途:住家用
- 形式/類型:住宅/ 透天厝
- 車位:獨立車庫
詳細資訊
特色說明
圖片介紹
















地圖 (點擊顯示地圖)
我家AI分析|物件診斷一次看
本內容由AI輔助分析整理,僅供參考,實際情況仍建議依此房仲說明與個人需求判斷。
以下針對物件編號 1372355 之買房者角度分析:
一、SWOT 分析
| 面向 | 內容 |
|---|---|
| 優勢 (Strengths) | 地理位置優越: 位於南區仁和路,近中興大學與東峰國中,學區資源豐富。 生活機能完善: 鄰近第三市場、大買家、全聯,且臨近健康公園,日常生活採買與休閒便利。 空間配置寬敞: 總坪數 55.122 坪,3 房 3 廳 3 衛,適合大家庭或需要獨立工作空間者。 道路與景觀: 正對 20 米大路,出入動線良好;標榜朝南且具備綠海視野,採光通風條件可能較佳。 |
| 劣勢 (Weaknesses) | 屋齡較高: 屋齡達 42 年,屬於老舊透天,內部管線與結構維護成本可能較高。 價格單價偏高: 參考單價約 35.92 萬/坪,對於 40 年以上的房產而言,單價並不低廉。 停車資訊不一致: 資料中列有「獨立車庫」亦出現「騎樓」描述,需確認實際車位性質與可用性。 格局複雜性: 老透天的 3 廳配置可能意味房間坪數受限或動線較曲折,需現場確認格局合理性。 |
| 機會 (Opportunities) | 產權用途多元: 除住宅外,適合設置診所、工作室或藥局,具備自住與投資兼備的潛力。 租金收益潛力: 鄰近中興大學與國中小學區,對於租賃需求(學生或教職員工)具穩定吸引力。 改造空間大: 透天厝結構通常較具彈性,若有翻新預算,可大幅改善老舊住居品質並提升房產價值。 |
| 威脅 (Threats) | 貸款審核風險: 銀行對於屋齡超過 40 年的建物,可能在貸程上有所限制(如貸年限縮短或成數降低),買方需確認自身資金調度。 老舊資產折損: 隨著時間推移,硬體設施自然老化,若後續缺乏妥善管理,可能導致房產價值不如預期增長。 交易資訊混亂: 部分行銷用語與實際車位描述存在差異,需確保地籍與登記內容相符,避免日後產權糾紛。 |
二、物件評論
此物件位於台中市南區仁和路,擁有極佳的交通位置與生活機能,且具備透天厝的空間優勢與潛在商業用途(如診所或工作室),對於需要大空間且重視學區的買方而言,具備相當的吸引力。然而,42 年的屋齡是主要考量點,這可能導致銀行貸款審核變嚴,且後續維護成本較高。
是否值得購買? 若您具備自備款並能通過老舊房屋的貸款審核,或計劃長期持有(例如用於出租回報或投資),此物件因其地段與空間條件值得考慮。但若您偏好新建物、極度重視房屋新舊程度,或資金預算有限難以承受潛在的整修費用,建議則需謹慎評估。在決策前,務必確認實際車位使用方式及現場檢視屋況漏水等隱患問題。
問與答
南區大樓出售
南區大樓出售
蔣晏綾(仲介,收取服務費)
暱稱:蔣晏綾
專業品質:
服務態度:
房仲電話:0968-671183
訂閱:1 (加入)台中文心大慶 加盟店
經紀業名稱: 瓏耀地產有限公司
證號: (105)登字第302171號
南區大樓出售 蔣晏綾 0968671183
預約看屋
發問
收藏房屋土地
分享
















我家粉絲團