清水買屋賣屋
清水買屋 /
清水買房
-
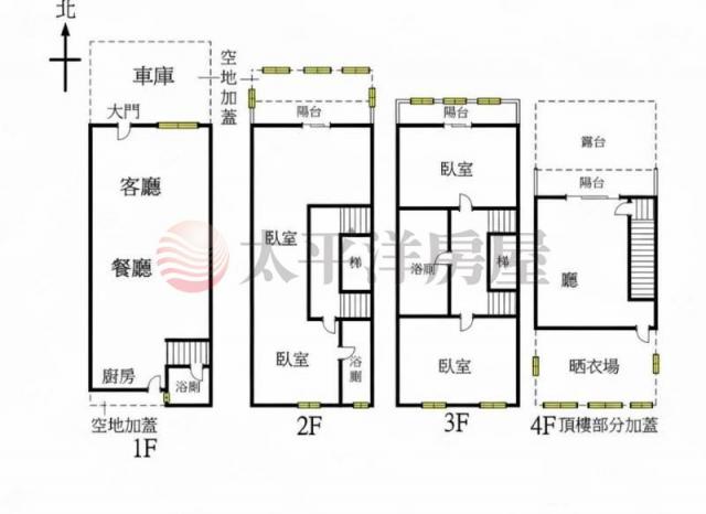
輕屋齡傳統前停整層主臥美墅
※以上照片若為街景,為物件附近環境介紹,非刊登物本身。
預約看屋
更多優質好屋: 152
※ 房屋照片僅反應使用現況,用途以實際合法文件為準。若法定用途與現況不同,可能違法並有相關風險,請購屋或承租前詳加確認,以保障權益。
詳細資訊
特色說明
圖片介紹



















地圖 (點擊顯示地圖)
問與答
賣家資訊
清水買屋賣屋
宋品儀(仲介,收取服務費)
暱稱:宋小姐
專業品質:
服務態度:
房仲電話:0912-613030
讚:0 (加入)太平洋房屋 清水中山旗艦店 加盟店
經紀業名稱: 田豐不動產有限公司
證號: 103279165
清水買屋賣屋
室內電話:0426233000
預約看屋
發問
收藏房屋土地
分享




















我家粉絲團