西區買屋 /
西區買房
-
台中房仲阿技 模範商圈2F美寓
預約看屋
更多優質好屋: 199
※ 房屋照片僅反應使用現況,用途以實際合法文件為準。若法定用途與現況不同,可能違法並有相關風險,請購屋或承租前詳加確認,以保障權益。
- 總價:998 萬
- 參考單價:40.62 萬/坪
- 地址:
台中市
西區
模範街
地圖
🏷️ 查看區域實價登錄
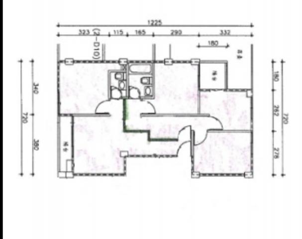
- 格局: 3房(室) 3廳 1衛 2陽台
- 總坪數:24.57 坪 (不含車位面積)
- 主建物面積:22.63 坪
- 附屬建物面積:1.94 坪
- 樓別/樓高: 2樓 / 5樓
- 屋齡:42 年
- 法定用途:住家用
- 形式/類型:住宅/ 公寓
詳細資訊
物件資訊內容以登記簿謄本或預售屋買賣契約為準,若有疑問請洽承辦人員。
特色說明
圖片介紹











地圖 (點擊顯示地圖)
我家AI分析|物件診斷一次看
本內容由AI輔助分析整理,僅供參考,實際情況仍建議依此房仲說明與個人需求判斷。
1. SWOT 分析
| 面向 | 內容 |
|---|---|
| 優勢 (Strengths) | 1. 地段優異:位於西區模範商圈,鄰近勤美商圈,生活機能完善,交通便利。 2. 單價實惠:參考單價約 40.62 萬/坪,在市中心區域屬於較低門檻。 3. 投資報酬率高:年收租約 50.76 萬,年投報率約 5%,現金流表現強。 4. 居住品質優化:雖為老屋,但經過全新整理並裝設電子鎖,安全性與便利性提升。 |
| 劣勢 (Weaknesses) | 1. 屋齡偏老:屋齡達 42 年,銀行貸款年限可能受限,且未來維修隱憂較高。 2. 無電梯:5 樓中僅 2 樓,雖不用爬太多樓,但對於行動不便者或搬家仍不便。 3. 衛浴不足:3 房 1 衛的配置,若全家同住將造成早晚擁擠,使用效率低。 4. 無車位:總坪數不含車位,對於需開車的購屋者,通勤便利性打折扣。 |
| 機會 (Opportunities) | 1. 區域增值潛力:模範街商圈文化氣息濃厚,鄰近文創商家聚集,未來若區域再生可能有漲幅。 2. 自用或投資雙修:收租自用兩相宜,若未來不租,可經翻新後自用,彈性高。 3. 租屋市場需求:地段位於熱門租屋區,租金來源穩定,空屋機率低。 |
| 威脅 (Threats) | 1. 轉手流動性:高屋齡且無電梯的公寓,未來出售時可能面臨買家群縮小、變現較慢。 2. 政策與法規風險:老老屋未來可能面臨政府強拆或重劃政策,不確定性存在。 3. 維護成本隱憂:隨著屋齡增加,公共設施損耗(如水管、電路)可能導致突發維修費用。 |
2. 物件評論
這筆物件非常適合**「以投資收租為主」的購屋者,對於「純自住」**的年輕家庭則需謹慎評估。
是否值得購買? 若您資金穩定且看重現金流,這是一筆值得考慮的資產;若您希望長期居住(10 年以上)或對居住舒適度要求高,則建議持觀望態度。
主要理由:
- 性價比與收益:在 台中市西區核心地段,能以不到 1000 萬入手 24 坪三房,且擁有 5% 的年投報率,在當前房市環境下相當少見,具備極佳的抗通膨能力。
- 居住限制:42 年屋齡搭配「3 房 1 衛」的格局,對於有老人或小孩的家庭來說,生活摩擦成本較高,且無電梯會隨著歲月增加不便。
- 未來風險:老舊公寓的貸款年限與轉手流動性不如新成屋,建議先確認銀行的核貸條件,並計算好持有成本與潛在維修費用後再做決定。
問與答
台中房仲阿技
台中房仲阿技
黃怡霖(仲介,收取服務費)
暱稱:黃怡霖 房仲阿技
專業品質:
服務態度:
房仲電話:0939-991898
訂閱:1 (加入)群義房屋 青海家樂福 加盟店
經紀業名稱: 西屯不動產仲介經紀有限公司
證號: (92)登字第028278號
台中房仲阿技 黃怡霖 0939991898
您好!我是您可信賴的房仲,專注於為每一位客戶提供誠實、負責的服務。我擁有多年的專業經驗,並且以滿懷熱情的態度來幫助您找到理想的居所。在過去的數年中,我榮獲了多項榮譽,包括22屆金仲獎楷模以及千萬經紀人,這些成就不僅是對我工作的肯定,更是我不斷追求卓越的動力。
我專精於開發、行銷、估價等領域,也具備專業攝影的技能,能夠為每一處房產拍攝出迷人的照片。我的藝術興趣如書法和彩繪,讓我在房地產這個行業中更具創造力和美感。我特別熟悉梅川陽明畢卡索、狀元家庭和西屯中港假期這些優質社區,能為您提供最專業的建議與服務。
如果您正在尋找理想的家或想要出售您的物業,請隨時聯絡我!讓我們一起實現您的房產夢想!
預約看屋
發問
收藏房屋土地
分享











我家粉絲團