苗栗透天 店住
苗栗買屋 /
苗栗買房
-
苗栗房屋買賣 商機無限好店住透天
預約看屋
更多優質好屋: 105
※ 房屋照片僅反應使用現況,用途以實際合法文件為準。若法定用途與現況不同,可能違法並有相關風險,請購屋或承租前詳加確認,以保障權益。
- 總價:
1680 萬
1498 萬 - 參考單價:27.41 萬/坪
- 地址:
苗栗縣
苗栗市
中華路
地圖
🏷️ 查看區域實價登錄
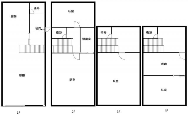
- 格局: 4房(室) 2廳 4衛
- 總坪數:54.66 坪 (不含車位面積)
- 主建物面積:50.26 坪
- 附屬建物面積:4.4 坪
- 土地面積:32.71 坪
- 樓別/樓高: 整棟 / 4樓
- 屋齡:43 年
- 法定用途:廠房.辦公室.倉庫.宿舍
- 形式/類型:其它/ 廠房.辦公室.倉庫.宿舍
- 車位:其它
- 車位描述:門前騎樓停車
影音專區
房市行情分析
本圖表依實價登錄資料整理,提供市場行情參考;實際價格仍會因屋況、條件不同而有所差異,建議洽詢承辦營業員進一步了解。
詳細資訊
特色說明
圖片介紹

















地圖 (點擊顯示地圖)
專家亮點
本內容由 AI 輔助分析整理,僅供參考,實際情況仍建議依此房仲說明與個人需求判斷。
購買建議:值得考慮,但需確認使用需求
此物件對於「自住兼商用」或「長期投資收租」的買家而言,具備不錯的配置。其最大優勢在於位於苗栗市中心黃金地段,交通與生活機能完善,且總坪數大、單價合理,能大幅降低單位空間成本。前後門設計與靈活空間也提升了使用便利性。
然而,主要考量點在於屋齡與土地用途。43 年的屋齡代表需做好心理準備承擔潛在的修繕費用,且建物登記用途為廠房或宿舍,可能影響銀行貸款年限與稅費差異。若您的購屋目的是純住宅且對貸款年限要求高,建議務必與銀行確認承作細節;若您是尋找商業辦公或混合用途據點,此物件在價格與地段上具備相當的競爭力。在簽約前,建議聘請專業技師檢查結構安全,並詳查土地分區法規是否符合作業需求。
問與答
苗栗房屋買賣
苗栗房屋買賣
邱名秀 邱棠(仲介,收取服務費)
暱稱:邱名秀 邱棠 名秀
專業品質:
服務態度:
房仲電話:0988-395882
訂閱:2 (加入)住商不動産 苗栗縣府 加盟店
經紀業名稱: 弘揚不動產有限公司
證號: (104)登字第297136號
苗栗房屋買賣 名秀 邱棠 0988-395882
用誠懇的心,成就您買賣大小事 !
買屋,賣屋,租賃!
~ 幸福成家找名秀.邱棠 ~
預約看屋
發問
收藏房屋土地
分享

















我家粉絲團