北屯雙車別墅
北屯買屋 /
北屯買房
-
北屯購屋首選【海灣伯爵】社區型雙車別墅 單元12葳格中學特區
預約看屋
更多優質好屋: 150
※ 房屋照片僅反應使用現況,用途以實際合法文件為準。若法定用途與現況不同,可能違法並有相關風險,請購屋或承租前詳加確認,以保障權益。
詳細資訊
朝向方位:坐西朝東
鄰近學校:建功國小、東山高中(國中)
鄰近公園:南興公園、軍福公園
生活機能:軍功市場、東山黃昏市場
附近交通:捷運舊社站、台鐵松竹站、快速道路74號、國道1號、國道4號
物件資訊內容以登記簿謄本或預售屋買賣契約為準,若有疑問請洽承辦人員。
特色說明
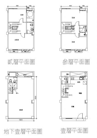
圖片介紹














地圖 (點擊顯示地圖)
問與答
北屯購屋首選
北屯購屋首選
郭于睿(仲介,收取服務費)
暱稱:郭于睿
專業品質:
服務態度:
房仲電話:0976-865582
讚:1 (加入)台灣房屋 南興公園 加盟店
經紀業名稱: 凱韻不動產有限公司
證號: (107)登字第337954號
各位貴人你們好,我是睿睿Ray Ray,北屯購屋首選 郭于睿 0976-86-5582
在台中服務房地產6年,成交過農地、重劃區建地、電梯別墅、惠宇大樓、精銳大樓、收益型電梯透套,我是你的專業房地產規劃師,房地產問題歡迎找睿睿Ray Ray!
北屯購屋首選【大毅讚幸福】【實價登錄價】【更待何時】
台中市 北屯區
北屯購屋首選【坤悅】【邊間】【臨路】店面雙車別墅
台中市 太平區
北屯購屋首選 大河戀三房平車
台中市 北屯區
北屯購屋首選【文華硯】三房雙車位 機械上下一組 優質好房源
台中市 北屯區
北屯購屋首選 科博館植物園優質小豪宅兩房平車
台中市 北 區
我專任我承辦【14期】敦化路一段六米大面寬建地
台中市 北屯區
北屯購屋首選 最美店面 最美樓店 屋主不賺最甜
台中市 東 區
北屯購屋首選 心之所向兩房平車
台中市 北屯區
北屯購屋首選【精銳臻未來】【再賣一戶】【單元12】
台中市 北屯區
北屯購屋首選【亞昕一沐】【14期起漲點】賠售屋主 兩房平車三房平車
台中市 北屯區
預約看屋
發問
收藏房屋土地
分享















我家粉絲團