內湖科學園區旁
內湖買屋 /
內湖買房
-
台北建地買賣 獨棟電梯別墅可停雙超跑
詳細資訊
特色說明
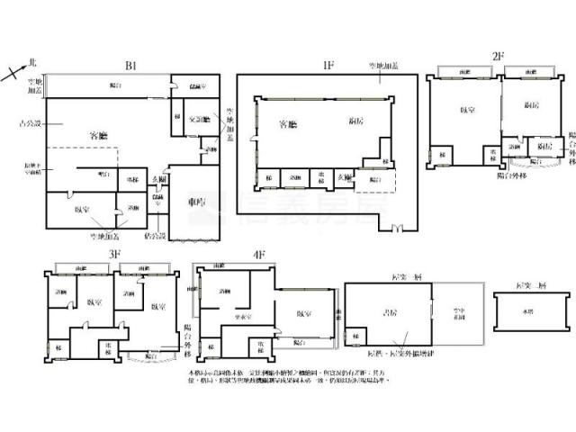
圖片介紹
















地圖 (點擊顯示地圖)
問與答
賣家資訊
台北建地買賣
傅寶樹(仲介,收取服務費)
暱稱:台灣房屋傅寶樹
專業品質:
服務態度:
房仲電話:0920-095888
讚:1 (加入)台灣房屋 內湖 加盟店
經紀業名稱: 眾富金不動產仲介有限公司
證號: (100)北市經證字第01787號
台北建地買賣 傅寶樹 0920095888
預約看屋
發問
收藏房屋土地
分享
















預約看屋

我家粉絲團