太平電梯大樓
太平買屋 /
太平買房
-
專簽/全新春福興波2房雙衛開窗平車露台戶北屯電梯大樓
預約看屋
更多優質好屋: 18
※ 房屋照片僅反應使用現況,用途以實際合法文件為準。若法定用途與現況不同,可能違法並有相關風險,請購屋或承租前詳加確認,以保障權益。
詳細資訊
管理描述:交屋後等管委會決定
鄰近學校:小學 市立新平國小 國中 市立新光國中
鄰近公園: 馬卡龍公園
生活機能: 新光黃昏市場
面臨路寬:40米
物件資訊內容以登記簿謄本或預售屋買賣契約為準,若有疑問請洽承辦人員。
特色說明
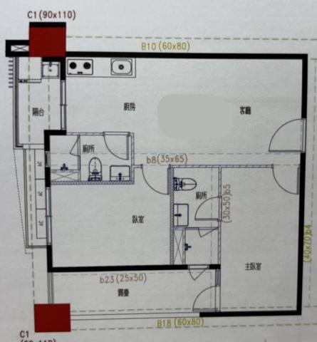
圖片介紹










地圖 (點擊顯示地圖)
問與答
賣家資訊
北屯透天大樓
張孟盉(仲介,收取服務費)
暱稱:張孟盉 John
專業品質:
服務態度:
房仲電話:0981-525970
讚:2 (加入)14期松竹山西 加盟店
經紀業名稱: 瑒洋不動產經紀有限公司
證號: (108)登字第352576號
北屯透天大樓 張孟盉 0981-525-970
獨家專任中科世貿商圈大四房雙主臥附車位一層一戶 北屯透天大樓
台中市 西屯區
北屯土地 獨家專任超俗底於角地行情價14期洲際段漂亮大面寬角地
台中市 北屯區
北區最便宜|大潤發|太原麗園道|科博館旁優質兩房車位 北屯電梯大樓
台中市 北 區
浩瀚湖濱城|朝南視野|高樓層宜居陽台|大三房平車 北屯透天大樓
台中市 東 區
北屯透天大樓 鉅虹森美館|朝南大三房連號雙車
台中市 北屯區
北屯透天大樓 14期水湳生態公園|國泰MOST+三房平車露台戶
台中市 北屯區
專任|大里立新國小四房有孝親房前院車庫臨路美透天北屯透天大樓
台中市 大里區
北屯透天大樓 專簽❗️百億中醫|總太2020|兩房平車帝王視野
台中市 北屯區
北屯透天大樓 獨家豐邑太原Yes三房平車中樓層我最便宜
台中市 北屯區
北屯透天大樓獨家|勝美松竹|朝南百萬裝潢|正4房|雙休旅車位
台中市 北屯區
預約看屋
發問
收藏房屋土地
分享












我家粉絲團