豐原買屋 /
豐原買房
-
后里中科建案 豐原廟東商業區電梯店透
※以上照片若為街景,為物件附近環境介紹,非刊登物本身。
預約看屋
更多優質好屋: 35
※ 房屋照片僅反應使用現況,用途以實際合法文件為準。若法定用途與現況不同,可能違法並有相關風險,請購屋或承租前詳加確認,以保障權益。
- 總價:
3688 萬
3000 萬 - 參考單價:32.69 萬/坪
- 地址:
台中市
豐原區
信義街
地圖
🏷️ 查看區域實價登錄
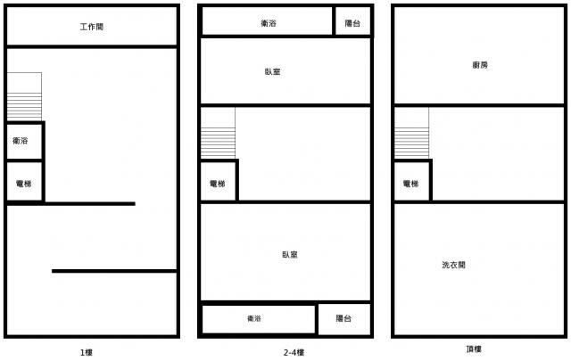
- 格局: 11房(室) 1廳 7衛
- 總坪數:91.78 坪 (不含車位面積)
- 主建物面積:84.63 坪
- 附屬建物面積:7.15 坪
- 土地面積:25.71 坪
- 樓別/樓高: 整棟 / 5樓
- 屋齡:14 年
- 法定用途:住家用
- 形式/類型:住宅/ 透天厝
- 車位:其它
- 車位描述:門口
詳細資訊
管理方式:無
朝向方位:坐北朝南
鄰近學校:豐原國小、豐原國中
鄰近公園:墩腳綠園
生活機能:廟東夜市、太平洋百貨
附近交通:國道一號、國道四號、豐原車站
物件資訊內容以登記簿謄本或預售屋買賣契約為準,若有疑問請洽承辦人員。
朝向方位:坐北朝南
鄰近學校:豐原國小、豐原國中
鄰近公園:墩腳綠園
生活機能:廟東夜市、太平洋百貨
附近交通:國道一號、國道四號、豐原車站
物件資訊內容以登記簿謄本或預售屋買賣契約為準,若有疑問請洽承辦人員。
特色說明
圖片介紹








地圖 (點擊顯示地圖)
問與答
后里中科建案
后里中科建案
羅承佑(仲介,收取服務費)
暱稱:羅承佑
專業品質:
服務態度:
房仲電話:0975-799933
訂閱:1 (加入)住商不動産 外埔甲后 加盟店
經紀業名稱: 森信房屋不動產有限公司
證號: (101)登字第200281號
后里中科建案 羅承佑 0975799933
預約看屋
發問
收藏房屋土地
分享








我家粉絲團