潭子全新電梯別墅
潭子買屋 /
潭子買房
-
專任潭子重劃區全新交屋|五房超大地坪邊間三車電梯別墅 西屯大
預約看屋
更多優質好屋: 17
※ 房屋照片僅反應使用現況,用途以實際合法文件為準。若法定用途與現況不同,可能違法並有相關風險,請購屋或承租前詳加確認,以保障權益。
- 總價:4288 萬
- 參考單價:46.83 萬/坪
- 地址:
台中市
潭子區
弘勇街
地圖
🏷️ 查看區域實價登錄
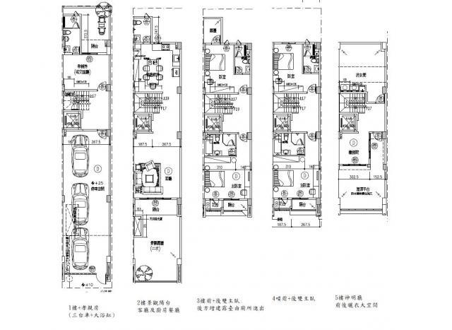
- 格局: 5房(室) 3廳 7衛 4陽台
- 總坪數:91.56 坪 (包含車位面積)
- 主建物面積:84.45 坪
- 附屬建物面積:7.11 坪
- 土地面積:38.3 坪
- 樓別/樓高: 整棟 / 5樓
- 屋齡:1 年
- 法定用途:住家用
- 形式/類型:住宅/ 別墅
- 車位:獨立車庫
- 電梯:有
詳細資訊
特色說明
圖片介紹















地圖 (點擊顯示地圖)
問與答
西屯大樓社區
西屯大樓社區
劉容奇(仲介,收取服務費)
暱稱:劉容奇
專業品質:
服務態度:
房仲電話:0913-526992
訂閱:0 (加入)十二期逢大福星 加盟店
經紀業名稱: 瑞璽地產開發有限公司
證號: (112)登字第437203號
西屯大樓社區 劉容奇 0913526992
獨家|台灣隱賦三房平車|新光遠百雙捷運市政特區 西屯大樓社區
台中市 西屯區
價格/屋況/地點/屋齡~該區最超值就這一戶 西屯大樓社區
台中市 南屯區
獨家|美術館旁|低總價超值邊間精美店住附平車 西屯大樓社區
台中市 西 區
崇德文心捷運旁|三木凱撒正一房一廳邊間採光視野戶 西屯大樓社區
台中市 北屯區
西區|近勤美綠園道、科博館廣三第六市場|超大空間燙金店面 西屯社區大樓
台中市 西 區
獨家|鑰匙在手|十二期|品藏逢甲文修公園旁稀有大兩房採光戶西屯大樓社區
台中市 西屯區
獨家|台灣隱賦兩房雙衛平車|新光遠百雙捷運市政特區 西屯大樓社區
台中市 西屯區
大雅上楓國小|傳統格局可孝親房全新整理靜巷透天 西屯大樓社區
台中市 大雅區
?商辦市場爆發|投資七期商辦|社區多戶可選 西屯大樓社區
台中市 西屯區
弘富重劃區|潭子全新交屋五房臨路電梯別墅多戶可選 西屯大樓社區
台中市 潭子區
預約看屋
發問
收藏房屋土地
分享















我家粉絲團