誠總首席雲端電梯豪墅
北屯買屋 /
北屯買房
-
誠總建設首席雲端?漂亮升級版的雙拼別墅! 台中房仲大媽
預約看屋
更多優質好屋: 43
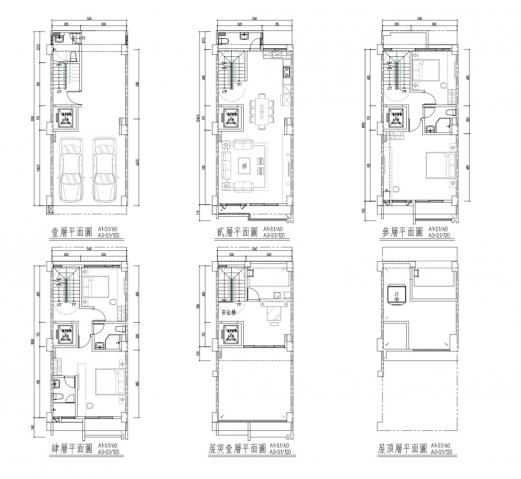
※ 房屋照片僅反應使用現況,用途以實際合法文件為準。若法定用途與現況不同,可能違法並有相關風險,請購屋或承租前詳加確認,以保障權益。
詳細資訊
特色說明
圖片介紹












地圖 (點擊顯示地圖)
問與答
賣家資訊
台中房仲大媽
鄭有翎(仲介,收取服務費)
暱稱:台中房仲大媽
專業品質:
服務態度:
房仲電話:0985-850962
讚:1 (加入)台灣房屋 燊鼎地產股分有限 加盟店
經紀業名稱: 燊鼎地產股分有限公司機捷燊鴻分公司
證號: (111)登字第418870號
台中房仲大媽的專業範圍非常廣泛,涵蓋了不動產節稅、移轉、繼承、贈與和買賣等各個方面。她在房地產業界的知識豐富程度,連一些老手都不得不佩服。不管是第一次購屋的新手,還是擁有多處房產的投資者,都對她的專業能力讚譽有加。為了不斷提升自己,台中房仲大媽經常參加各類房地產相關的進修課程,確保能夠為客戶提供最新、最準確的資訊和建議。
說到她的「雞婆」,這可是她的一大特色!有人可能會覺得雞婆是件麻煩事,但台中房仲大媽的雞婆卻讓人倍感安心。她總是不厭其煩地關心客戶的需求,不放過任何細節,確保每個步驟都能順利完成。比如,有一次她發現某位客戶少交了一點稅,這對一般人來說可能很難察覺,但她細心地查閱所有文件後,立馬打電話通知客戶。結果,客戶因此省下了不少錢,對她的信任度大增,還介紹了好幾位朋友給她。這樣的例子在她的職業生涯中不勝枚舉,正是因為她的細心與專業,大媽贏得了無數客戶的信賴和讚譽。
除了在工作上精益求精,台中房仲大媽還是一個熱愛助人的人。她不僅在工作中竭盡全力幫助客戶,還積極參與社區活動,與鄰里之間保持著良好的關係。她常說:「幫助別人,就是幫助自己。」這句話不僅是她的座右銘,更是她日常生活的真實寫照。正因如此,她在台中房地產界贏得了許多尊重和愛戴,無論是同行還是客戶,對她都是一片好評。
總之,台中房仲大媽不僅僅是一個房地產經紀人,更是您的好夥伴。在買房、賣房的每個環節,她都能為您提供貼心的建議和支援。她的專業和雞婆,讓人無法不愛!如果您有任何關於房地產的問題,不妨找她聊聊,您一定會感受到她的真誠與熱情。對她來說,每一位客戶都是她的朋友,她總是全心全意地為每位客戶提供最好的服務。這樣的台中房仲大媽,真的是值得信賴的房地產好夥伴。
北屯葳格|稀有8車位|住店合一|角間電梯豪墅 台中房仲大媽
台中市 北屯區
降價|錯過不再|水湳經貿透天|孝親房+前院車庫 台中房仲大媽
台中市 北屯區
新光特區|7米大面寬|一樓20坪|漂亮1+2F店面平車 台中房仲大媽
台中市 北屯區
【機捷好市多特區】夢幻輕屋齡社區《登陽春賞》 台中房仲大媽
台中市 北屯區
大降300萬|東山商圈8米活路|角間大面寬|雙車透天 台中房仲大媽
台中市 北屯區
聚佳大砌屋主超佛心,單坪價現在不到38萬 台中房仲大媽
台中市 太平區
商業用店面|一中商圈|臨20米路|無分隔島|3%黃金透店 台中房仲大媽
台中市 北 區
大媽專任|東山商圈|大空間3房平車|全區最便宜 台中房仲大媽
台中市 北屯區
無敵便宜平房|全新整理2房|機能超強 台中房仲大媽
台中市 太平區
太平新光學區全新電梯店墅 台中房仲大媽
台中市 太平區
預約看屋
發問
收藏房屋土地
分享













我家粉絲團