永和電梯大樓 4房+
永和買屋 /
永和買房
-
☘︎中和永和買屋??永和絕美4房+車位☘︎
預約看屋
更多優質好屋: 14
※ 房屋照片僅反應使用現況,用途以實際合法文件為準。若法定用途與現況不同,可能違法並有相關風險,請購屋或承租前詳加確認,以保障權益。
- 總價:3988 萬 (含車位價)
- 參考單價:62.53 萬/坪
- 地址:
新北市
永和區
福和路
地圖
🏷️ 查看區域實價登錄
- 社區:福和雙子星
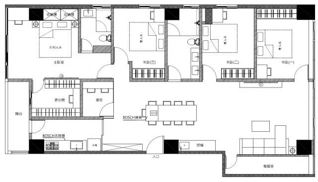
- 格局: 4房(室) 2廳 2衛 1陽台
- 總坪數:63.78 坪 (包含車位面積)
- 主建物面積:46.98 坪
- 附屬建物面積:3.8 坪
- 共同使用:7.25 坪
- 其他面積:5.75 坪
- 樓別/樓高: 8樓 / 11樓
- 屋齡:32 年
- 法定用途:商業用
- 形式/類型:住宅/ 電梯大樓
- 車位描述:坡道平面
- 電梯:有
房市行情分析
本圖表依實價登錄資料整理,提供市場行情參考;實際價格仍會因屋況、條件不同而有所差異,建議洽詢承辦營業員進一步了解。
詳細資訊
特色說明
圖片介紹




















地圖 (點擊顯示地圖)
專家亮點
本內容由 AI 輔助分析整理,僅供參考,實際情況仍建議依此房仲說明與個人需求判斷。
推薦建議:值得列入考慮,但需進一步釐清稅務與建管細節。
主要理由: 此物件在永和地區提供極具競爭力的空間與坪效比,特別是 12% 的低公設比與方正的 4 房格局,對於重視居住品質與家庭需求的購屋者來說,性價比非常高。然而,由於屋齡已達 32 年,加上「商業用」的土地性質可能影響稅務持有成本或貸款條件,建議您在決策前務必與中介確認具體的稅費差異,並查閱最近的建築修繕狀況與公設金提撥,以確保長期的居住安心與投資安全。
問與答
中和永和買房
中和永和買房
鄧鳳潔(仲介,收取服務費)
暱稱:鄧鳳潔
專業品質:
服務態度:
房仲電話:0931-218881
訂閱:1 (加入)台灣房屋 永和特許 加盟店
經紀業名稱: 豐年股份有限公司
證號: (112)登字第436649號
大家好,我是一個經驗豐富的房地產經紀人,非常榮幸能夠透過這個平台向大家介紹自己。作為一名房仲,我始終以客戶至上的態度為宗旨,致力於為您提供最專業、全面的服務。
我的特質是專業、細心,以及耐心。我相信每一位客戶都是獨一無二的,因此我會努力聆聽並理解您的需求,以便找到最符合您期望的房產。在面對挑戰時,我始終保持冷靜並尋找最佳解決方案,確保您的需求能夠得到充分滿足。
在得獎資歷方面,我曾經獲得優秀銷售代表獎以及最佳服務團隊獎,這些肯定激勵我繼續精進自己的專業能力。我深知房地產行業競爭激烈,因此不斷進修學習,不斷提升自己的專業知識和技能。
我的專業領域主要包括住宅、商業和租賃市場。我對房地產市場的了解非常深入,並擁有豐富的實務經驗。無論您是在尋找夢幻住宅、商業投資機會還是租房需求,我都能夠根據您的需求提供最適合的房產選項。
我擅長的社區或區域是新雙北區域 我對這個社區的地理位置、交通便利性以及生活機能都非常熟悉。我擁有詳細的市場研究和分析報告,能夠幫助您做出明智的選擇。
最後,我誠摯地邀請您與我聯繫,讓我成為您房地產需求的首選合作夥伴。我承諾將以全心全意的態度,為您提供最專業的服務和最優質的房產。請立即聯繫我,讓我們一同開啟找尋理想住所或投資機會的旅程吧!
預約看屋
發問
收藏房屋土地
分享




















我家粉絲團