台中機捷建案 鉅虹映
北屯買屋 /
北屯買房
-
(售出)鉅虹映一彎綠|大3房|外棟.朝南.高樓|無限視野 台
預約看屋
更多優質好屋: 87
※ 房屋照片僅反應使用現況,用途以實際合法文件為準。若法定用途與現況不同,可能違法並有相關風險,請購屋或承租前詳加確認,以保障權益。
- 總價:
2480 萬
2450 萬 (含車位價) - 參考單價:47.54 萬/坪
- 地址:
台中市
北屯區
敦富六街
地圖
🏷️ 查看區域實價登錄
- 社區:鉅虹映一彎綠
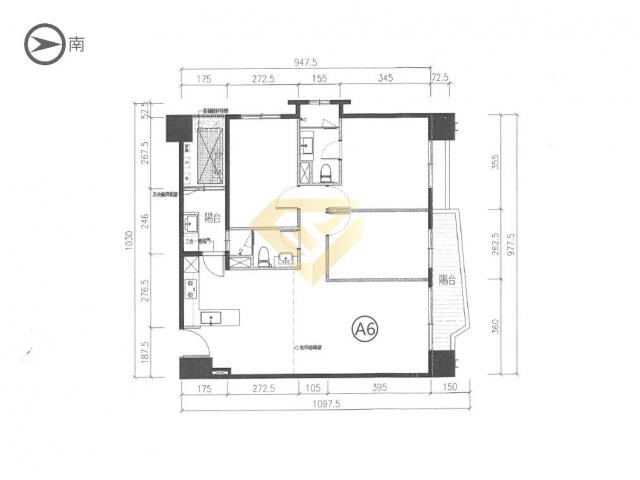
- 格局: 3房(室) 2廳 2衛 2陽台 1廚房
- 總坪數:51.54 坪 (包含車位面積)
- 主建物面積:25.87 坪
- 附屬建物面積:3.4 坪
- 共同使用:22.26 坪
- 車位坪數:7.48 坪
- 土地面積:6.7 坪
- 樓別/樓高: 13樓 / 15樓
- 法定用途:住家用
- 形式/類型:住宅/ 電梯大樓
- 車位:坡道平面式
- 電梯:有
房市行情分析
本圖表依實價登錄資料整理,提供市場行情參考;實際價格仍會因屋況、條件不同而有所差異,建議洽詢承辦營業員進一步了解。
詳細資訊
朝向方位:坐北朝南
鄰近學校:東光國小、北新國中
鄰近公園:南興公園
生活機能:全聯、好市多、大買家
附近交通:松竹車站、G0北屯總站
面臨路寬:20米
物件資訊內容以登記簿謄本或預售屋買賣契約為準,若有疑問請洽承辦人員。
特色說明
圖片介紹














地圖 (點擊顯示地圖)
專家亮點
本內容由 AI 輔助分析整理,僅供參考,實際情況仍建議依此房仲說明與個人需求判斷。
這件物件屬於北屯機捷區的高規格大坪數住宅,產品力強,但必須先釐清的是,資料顯示該戶已標註為「售出」,代表您目前無法直接購入此特定戶別。
若將其作為置業參考,我認為此物件在當時市場條件下具有高性價比。理由在於,47.54 萬的單價包含了車位,且擁有 51 坪的大空間與南向外向景觀,在家族換屋市場中極具競爭力。對於重視生活機能(如捷運、百貨、公園)以及居住寬度性的買家來說,這類型是極佳的範本。若您仍持續尋找北屯區類似條件的房源,建議可參考此案的價格與配置作為談判或評估其他在建案的重要基準。
問與答
台中機捷建案
台中機捷建案
葉人誠(仲介,收取服務費)
暱稱:百萬經紀人-小葉
專業品質:
服務態度:
房仲電話:0912-401627
訂閱:1 (加入)北屯水岸岩店 加盟店
經紀業名稱: 艾莉創億不動產
證號: (109)登字第375604號
台中機捷建案 葉人誠 0912401627
(賀成交) 櫻花晴川岸 四房平車 高樓 台中機捷建案
台中市 北屯區
(售出) 富宇峰景|3房雙車|臨路朝南|近捷運 台中機捷建案
台中市 北屯區
(售出)機捷3房平車|朝南戶別|前後陽台|近全新 台中機捷建案
台中市 北屯區
(賀成交) 機捷2房平車 新屋齡 永久棟距 台中機捷建案
台中市 北屯區
(賀成交)總太聚作|2房 高樓 平車 台中機捷建案
台中市 北屯區
(賀成交) 四維捷運站 大四房平車,7+8樓共6房
台中市 北屯區
(售出)崇德薈|2房2衛|無限視野|近漢神、洲際棒球場 台中機捷建案
台中市 北屯區
(賀成交) 鉅虹映一彎綠 公園第一排 三房平車 台中機捷建案
台中市 北屯區
(賀成交) 鉅虹HOKI|3房平車,全新成屋 台中機捷建案
台中市 北屯區
(售出) 聚佳大砌|2房平車|全新完工|新光特區|台中機捷建案
台中市 北屯區
預約看屋
發問
收藏房屋土地
分享














我家粉絲團