苗栗大樓、華廈、店住
苗栗買屋 /
苗栗買房
-
文山全新高CP大樓店住 苗栗房屋買賣
※以上照片若為街景,為物件附近環境介紹,非刊登物本身。
預約看屋
更多優質好屋: 94
※ 房屋照片僅反應使用現況,用途以實際合法文件為準。若法定用途與現況不同,可能違法並有相關風險,請購屋或承租前詳加確認,以保障權益。
- 總價:1700 萬
- 參考單價:39.56 萬/坪
- 地址:
苗栗縣
苗栗市
文發路
地圖
🏷️ 查看區域實價登錄
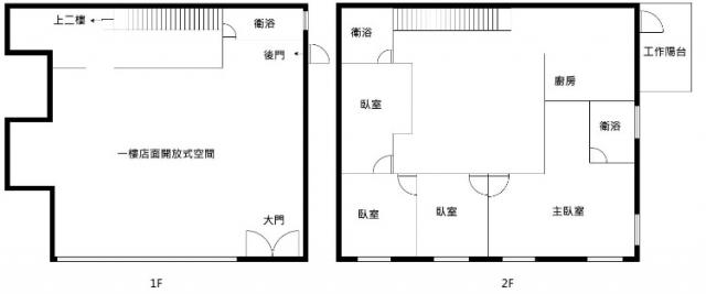
- 格局: 4房(室) 2廳 3衛
- 總坪數:42.97 坪 (不含車位面積)
- 主建物面積:15.19 坪
- 附屬建物面積:2.2 坪
- 共同使用:25.58 坪
- 土地面積:16.15 坪
- 樓別/樓高: 1樓 / 15樓
- 屋齡:1 年
- 法定用途:住商用
- 形式/類型:住宅/ 電梯大樓
- 車位:坡道平面式
- 電梯:有
影音專區
詳細資訊
特色說明
圖片介紹











地圖 (點擊顯示地圖)
問與答
苗栗房屋買賣
苗栗房屋買賣
邱名秀 邱棠(仲介,收取服務費)
暱稱:邱名秀 邱棠 名秀
專業品質:
服務態度:
房仲電話:0988-395882
訂閱:2 (加入)住商不動産 苗栗縣府 加盟店
經紀業名稱: 弘揚不動產有限公司
證號: (104)登字第297136號
苗栗房屋買賣 名秀 邱棠 0988-395882
用誠懇的心,成就您買賣大小事 !
買屋,賣屋,租賃!
~ 幸福成家找名秀.邱棠 ~
預約看屋
發問
收藏房屋土地
分享











我家粉絲團